Affordable starter home with cellar and outbuilding close to schools.
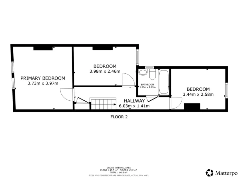
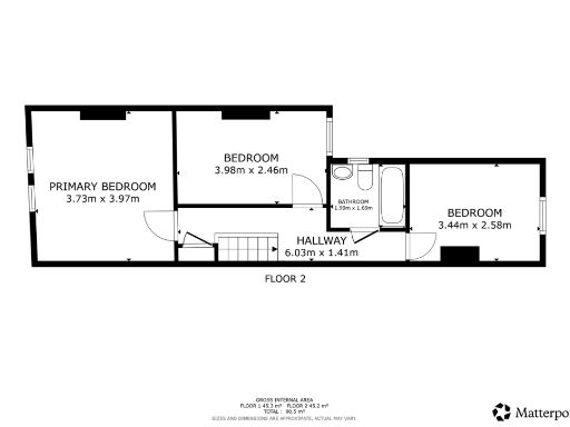
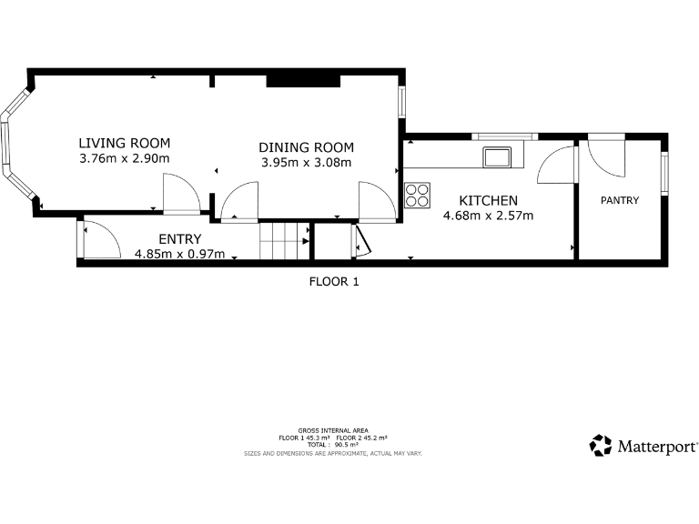
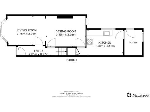
Three bedrooms with open-plan lounge/diner and separate kitchen
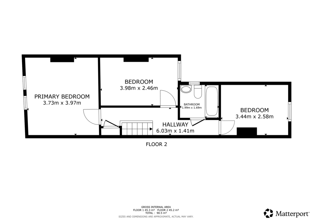
A three-bedroom Victorian mid-terrace offered freehold and priced to reflect genuine starter-home value. The house has a traditional bay-fronted facade and practical layout: open-plan lounge/diner, separate kitchen with adjoining utility, cellar and a small rear garden with a brick outbuilding and WC.
Rooms are average-sized for an early 20th-century terrace and the interior is presented in generally good decorative order, although the kitchen shows dated cabinetry and would benefit from modest updating. The cellar and outbuilding provide useful storage or potential conversion scope (subject to consents), helping maximise usable space for a growing household.
Location is convenient for everyday needs: local shops, cafes and several ‘Good’-rated primary and secondary schools are nearby, with regular bus services into Doncaster and quick road links to the A630, M18 and A1(M). Broadband and mobile signal are strong, and council tax is very low, which supports lower running costs.
Buyers should note material negatives: the property sits in an area of high crime and very high deprivation, and the solid brick walls likely lack modern insulation (no known cavity/insulation upgrade). Glazing is double but fitment date is unknown. These factors could affect energy bills, security considerations, and future maintenance costs. Overall this is a practical, low-entry-price terrace with clear scope to personalise and improve value over time.
3 bedroom terraced house for sale in Urban Road, Hexthorpe, DN4 — £110,000 • 3 bed • 1 bath • 1014 ft²
3 bedroom terraced house for sale in Glenfield Avenue, Doncaster, South Yorkshire, DN4 — £124,000 • 3 bed • 1 bath
3 bedroom terraced house for sale in Alder Grove, Balby, Doncaster, DN4 — £140,000 • 3 bed • 1 bath • 969 ft²
3 bedroom end of terrace house for sale in Tickhill Street, Denaby Main, DN12 — £95,000 • 3 bed • 1 bath • 1368 ft²
2 bedroom house for sale in Bentley Road, Doncaster, DN5 — £115,000 • 2 bed • 2 bath • 760 ft²
3 bedroom terraced house for sale in Ravensworth Road, Doncaster, DN1 — £165,000 • 3 bed • 2 bath • 1651 ft²


















































































