**Key Features:**
- Two spacious double bedrooms
- Top-floor apartment with stunning views
- Garage en-bloc for parking or storage
- Modern living area with large windows
- Desirable location near Eltham High Street
- 970 years remaining on the lease
- Average service charge of £1,702 PA
- EPC rating of E
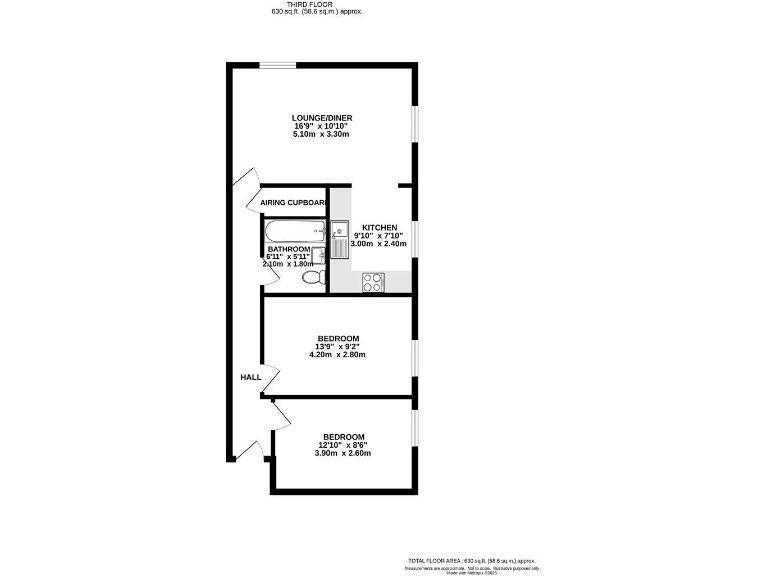
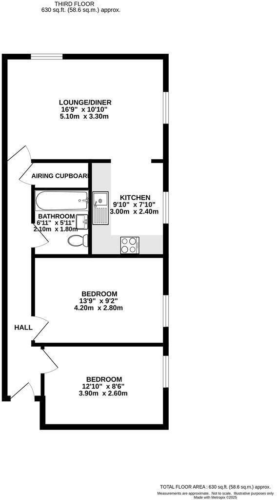
This well-lit top-floor apartment presents an outstanding opportunity for families or first-time buyers seeking a home in a popular location. Spanning 630 sq ft, it features two generously sized double bedrooms, a modern kitchen, and a welcoming living area measuring 16'9. Enjoy breathtaking views and the convenience of a garage while being steps away from the vibrant Eltham High Street's shopping and leisure options. The surrounding area is family-friendly, with highly rated local schools, and boasts excellent mobile and broadband connectivity.
While the apartment features modern double glazing and cavity walls, some may desire future upgrades, given its EPC rating of E. The average service charge and competitive council tax make this property an affordable choice with great potential. Don't miss the chance to view this delightful apartment set against the backdrop of Eltham’s amenities; it's ready for a discerning buyer to make it their own!
2 bedroom flat for sale in Greenacres, London, SE9 — £425,000 • 2 bed • 1 bath • 936 ft²
2 bedroom apartment for sale in Strongbow Crescent, Eltham, SE9 — £315,000 • 2 bed • 1 bath • 679 ft²
2 bedroom apartment for sale in Wythfield Road, London, SE9 — £325,000 • 2 bed • 1 bath • 631 ft²
2 bedroom flat for sale in Court Road, SE9 — £399,950 • 2 bed • 1 bath • 843 ft²
2 bedroom apartment for sale in Well Hall Road, London, SE9 — £250,000 • 2 bed • 1 bath • 851 ft²
3 bedroom apartment for sale in Well Hall Road, London, SE9 — £399,995 • 3 bed • 2 bath • 1307 ft²














































