Turnkey, low-maintenance living in a sociable village setting for active retirees.
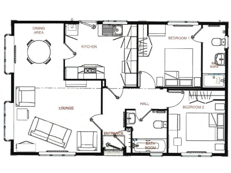
- Brand-new, fully furnished 35'x22' Omar Regency park home
- Two double bedrooms; master bedroom with en suite
- Low-maintenance single-storey living ideal for over-50s
- Close to train station (approx. 0.9 miles) and bus stop outside
- Council Tax band A; stamp duty exempt
- Virtual freehold; park homes typically not mortgageable — seek advice
- Site fees £235pcm and ground rent £2,820pa (very expensive)
- Slow broadband locally; excellent mobile signal; no pets allowed
This brand-new, fully furnished 35'x22' Omar Regency park home offers easy single-storey living designed for over-50s who want low-maintenance comfort and community life. The layout includes a modern fitted kitchen with integrated appliances, a comfortable living room, two double bedrooms and an en suite to the master. Large windows and neutral interiors create a bright, relaxed atmosphere throughout the 770 sq ft home.
Set in a peaceful riverside village location close to the River Crouch, the park has regular community transport links and is about 0.9 miles from the nearest railway station. Local amenities include a village shop and services a short drive away, and recreational options such as sailing and golf nearby — appealing to active retirees seeking social and outdoor options.
Important practical points are straightforward: the home sits on a residential park under virtual freehold terms (you buy the home and lease the pitch) and park homes are not generally mortgageable — seek solicitor advice. Site fees are currently £235 per month and ground rent is £2,820 per year (noted as very expensive). Broadband speeds are slow locally, mobile signal is excellent, and pets are not permitted on the site.
This property suits a buyer wanting a ready-to-move-in, low-upkeep retirement base with community amenities and nearby transport. It will particularly attract those prioritising location, social life and a turnkey home — though prospective purchasers should factor in ongoing site charges, restrictions on pets, and the virtual freehold tenure when deciding to view.
2 bedroom park home for sale in Hockley, Essex, SS5 — £195,000 • 2 bed • 1 bath • 500 ft²
2 bedroom park home for sale in Central Avenue, Althorne, CM3 — £90,000 • 2 bed • 1 bath • 502 ft²
2 bedroom mobile home for sale in East Avenue, Althorne, Chelmsford, Essex, CM3 — £265,000 • 2 bed • 2 bath • 689 ft²
3 bedroom park home for sale in Wickford, Essex, SS11 — £295,000 • 3 bed • 2 bath • 830 ft²
2 bedroom detached house for sale in East Avenue, Althorne, Chelmsford, Essex, CM3 — £210,000 • 2 bed • 2 bath • 703 ft²
2 bedroom mobile home for sale in Tower Park, Hullbridge, Hockley, SS5 — £150,000 • 2 bed • 1 bath • 482 ft²






















































