Well-presented two-bed starter home with parking and low maintenance garden..
Freehold two-bedroom semi-detached on a quiet cul-de-sac
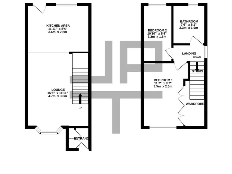
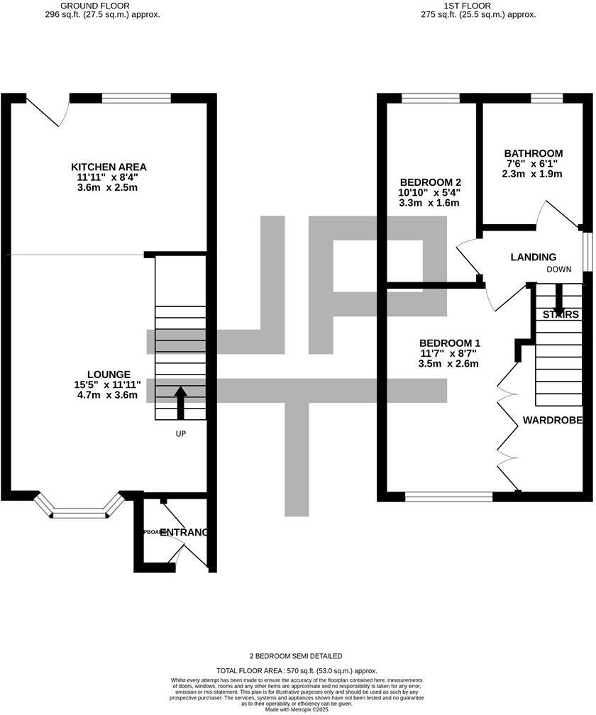
Compact internal footprint — modest 570 sq ft overall
Off-road parking via driveway; enclosed low-maintenance rear garden
UPVC double glazing and gas central heating (boiler and radiators)
Fast broadband; local primary schools rated Good nearby
Construction from 1980s; limited scope for major extension
Area has above-average crime — consider security measures
This tidy two-bedroom semi-detached house sits at the end of a cul-de-sac in Clayton-le-Woods, offering a compact, well-presented home ideal for first-time buyers or investors. The ground floor provides an open-plan sitting and dining area plus a fitted kitchen; two bedrooms and a three-piece shower room occupy the first floor. The property is freehold and benefits from UPVC double glazing and gas central heating.
Outside, the plot is modest but practical: an asphalt driveway provides off-road parking and a small gravelled front garden with shrubs; the rear has an enclosed, low-maintenance garden suitable for seating or container plants. Broadband speeds are fast and local schools are rated good, which will appeal to young families or renters seeking convenience and connectivity.
Key positives include the cul-de-sac location, transport links nearby, and economical running costs (council tax described as cheap). Important limitations are the overall small internal footprint and the area’s above-average crime level—factors buyers should weigh against the price and local advantages. The 1980s-era construction appears generally well maintained but offers limited scope for major extension without planning.
For purchasers seeking a manageable starter home or a straightforward buy-to-let, this property presents clear value: low-maintenance exterior, ready occupancy, and good energy efficiency indicators. Viewings are recommended to assess space and layout in person given the compact room sizes.
2 bedroom flat for sale in Oak Croft, Clayton-le-Woods, Chorley, Lancashire, PR6 — £115,000 • 2 bed • 1 bath • 611 ft²
2 bedroom semi-detached house for sale in Clover Field, Clayton-le-Woods, Chorley, PR6 7RP, PR6 — £170,000 • 2 bed • 1 bath • 603 ft²
2 bedroom semi-detached house for sale in Clover Field, Clayton-le-Woods, Chorley, PR6 7RX, PR6 — £170,000 • 2 bed • 1 bath • 538 ft²
2 bedroom semi-detached house for sale in Black Croft, Clayton-Le-Woods, Chorley, PR6 — £164,995 • 2 bed • 1 bath • 572 ft²
2 bedroom semi-detached house for sale in Clover Field, Clayton-Le-Woods, Chorley, PR6 — £189,995 • 2 bed • 1 bath • 815 ft²
3 bedroom semi-detached house for sale in Whittle Park, Clayton-le-Woods, Chorley, Lancashire, PR6 — £230,000 • 3 bed • 1 bath • 830 ft²


















































































































































































































