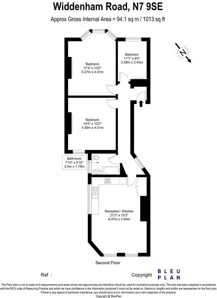
**Highlights:**
- Spacious three-bedroom apartment (1013 sq ft) in a classic mid-terrace building.
- Modern open-plan kitchen with contemporary appliances and captivating views of the London skyline.
- Bright living room with large windows, high ceilings, and a homely feel.
- Strategic location near Holloway Road tube station and local shops and amenities.
- Leasehold property with 62 years remaining on the lease, which may complicate mortgage financing.
- Above-average crime rates in the area and average to low insulation in the property.
This well-proportioned three-bedroom apartment on Widdenham Road combines comfort, character, and contemporary living. With a bright open-plan kitchen and reception area featuring large windows that flood the space with natural light, the flat feels airy and inviting. The stunning views of the London skyline from the kitchen are a perfect backdrop for festive celebrations, while the versatile layout accommodates both family living and home office needs. Ideal for professionals or growing families, this apartment is situated in a vibrant inner-city neighborhood, just moments from Holloway Road's amenities, including shops, cafes, and cinemas.
However, potential buyers should be aware of the leasehold nature of the property with only 62 years remaining, which may pose challenges for mortgage approval. Additionally, the property’s location in a slightly above-average crime area and minimal insulation might be considerations for buyers. With the right vision, this home has ample potential for personalization and future renovations, making it an exceptional opportunity not to be missed. Act quickly and explore the unique charm this property has to offer!
3 bedroom apartment for sale in Beaux Arts Building, Manor Gardens, London, N7 — £800,000 • 3 bed • 3 bath • 1272 ft²
3 bedroom flat for sale in Widdenham Road, Holloway, London, N7 — £700,000 • 3 bed • 1 bath • 1013 ft²
1 bedroom apartment for sale in Camden Road, London, N7 — £375,000 • 1 bed • 1 bath • 437 ft²
1 bedroom apartment for sale in Beaux Arts Building, Manor Gardens, London, N7 — £425,000 • 1 bed • 1 bath • 484 ft²
3 bedroom apartment for sale in Axminster Road, London, N7 — £750,000 • 3 bed • 2 bath • 1175 ft²
1 bedroom apartment for sale in Holloway Road, Holloway, Islington, London, N7 — £325,000 • 1 bed • 1 bath • 411 ft²


























































































































