Spacious, low‑maintenance living near shops and rail links.
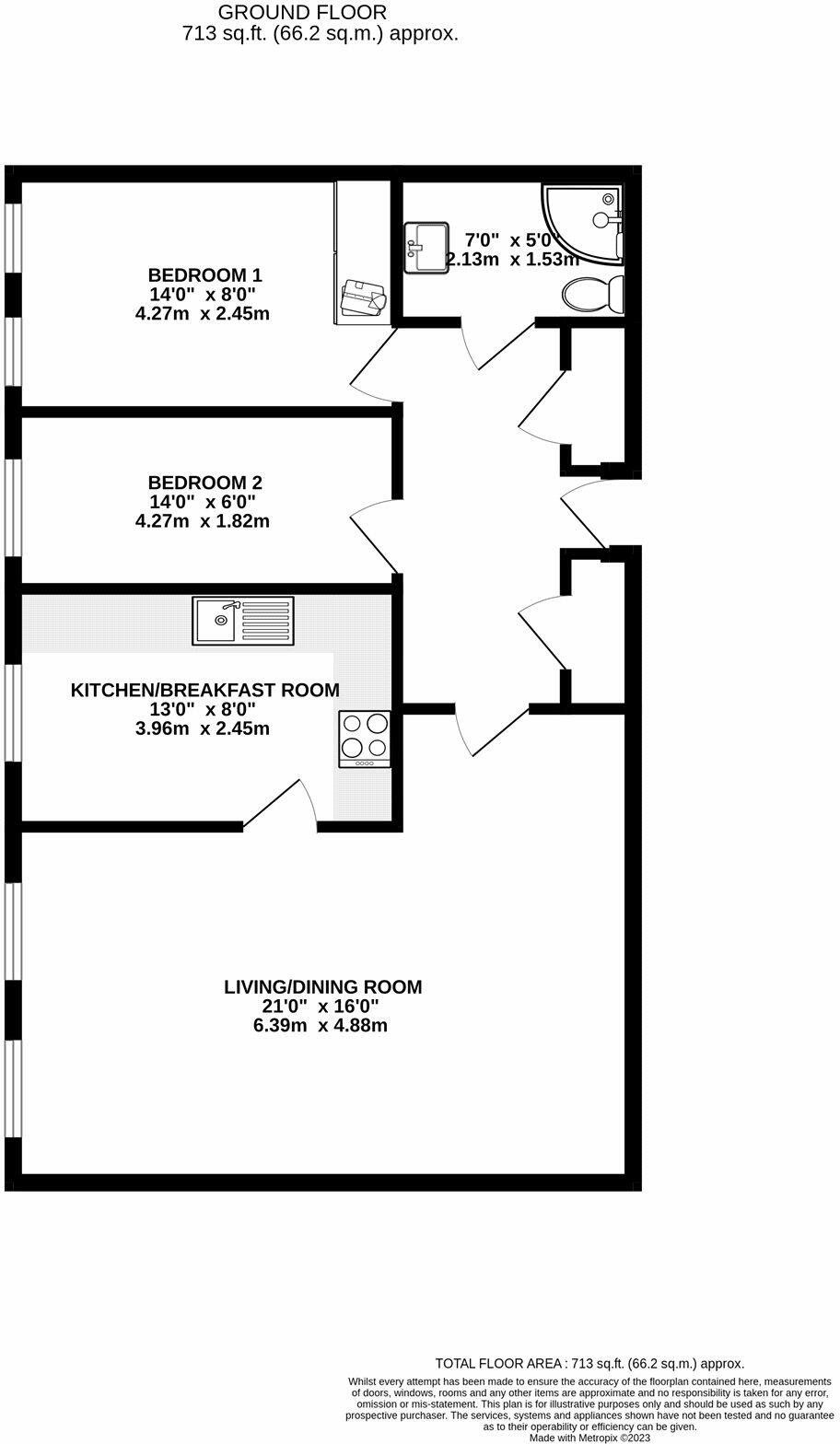
Two double bedrooms and large living room, 713 sq ft
Bright, spacious and quietly positioned, this two-bedroom retirement apartment on the third floor offers easy, low-maintenance living close to Whiteladies Road and Clifton Down. The large living room, separate fitted kitchen/breakfast room and attached conservatory provide comfortable, flexible space for daily living and visitors. A lift serves the floor, and well-kept communal lawns and a residents’ lounge extend the living space outdoors and socially.
Practical features include double glazing, electric storage heaters and an on-site manager, making the building straightforward to manage for those downsizing or seeking a supportive community. The apartment’s 713 sq ft footprint and two double bedrooms suit couples or friends sharing retirement living while remaining conveniently close to shops, cafes and Clifton Railway Station.
Buyers should note this is a leasehold retirement property with electric storage heating (can be more costly than central heating) and council tax banding is not specified. Crime levels in the immediate area are reported above average, which is worth considering when evaluating local security and personal comfort.
Overall, this apartment combines a comfortable, well-presented home with communal facilities and an excellent central Clifton location. It will particularly suit buyers seeking a social retirement environment with easy access to local amenities, transport and healthcare.
2 bedroom apartment for sale in Whatley Road, Bristol, Somerset, BS8 — £265,000 • 2 bed • 1 bath • 611 ft²
1 bedroom flat for sale in The Fosseway, Clifton, BS8 — £210,000 • 1 bed • 1 bath • 496 ft²
2 bedroom flat for sale in Guardian Court, Suspension Bridge Road, Clifton, Bristol BS8 — £231,000 • 2 bed • 1 bath • 701 ft²
2 bedroom apartment for sale in Whatley Road, Bristol, BS8 — £249,950 • 2 bed • 1 bath • 611 ft²
2 bedroom apartment for sale in Oakfield Road, Clifton, Bristol, Somerset, BS8 — £315,000 • 2 bed • 1 bath • 591 ft²
2 bedroom flat for sale in Redland Road, Redland, BS6 — £500,000 • 2 bed • 1 bath • 937 ft²






























































































