Very large ground-floor freehold in a landmark West End building, ideal for developer or investor.
Freehold ground-floor main door in the landmark Trinity Building
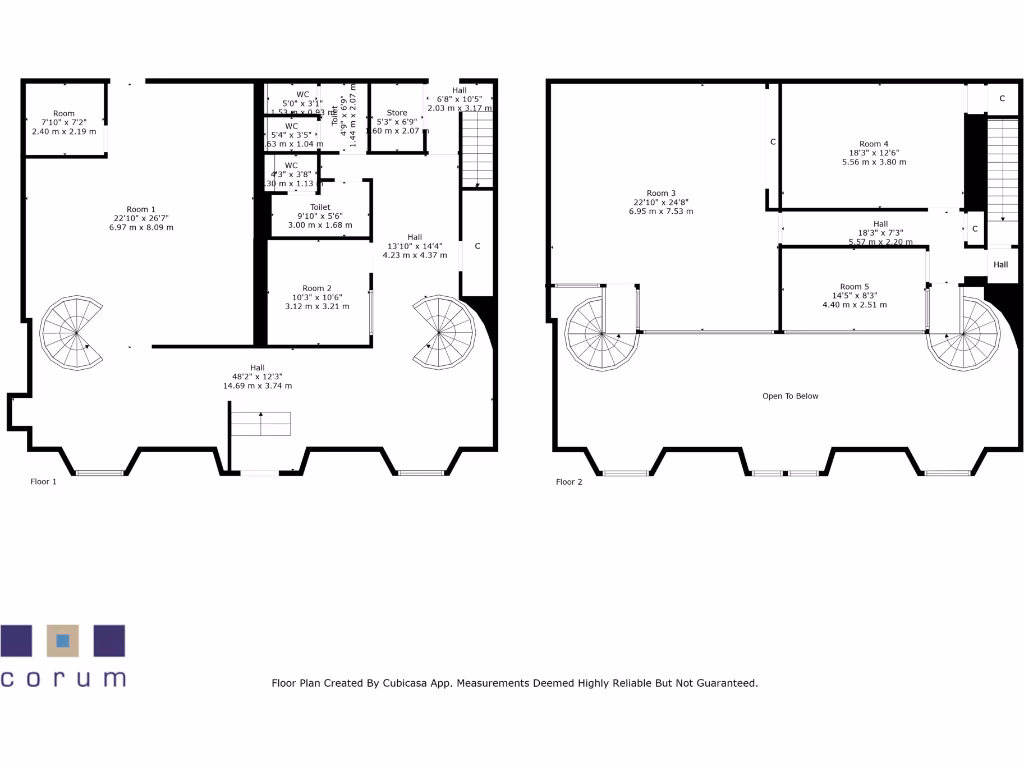
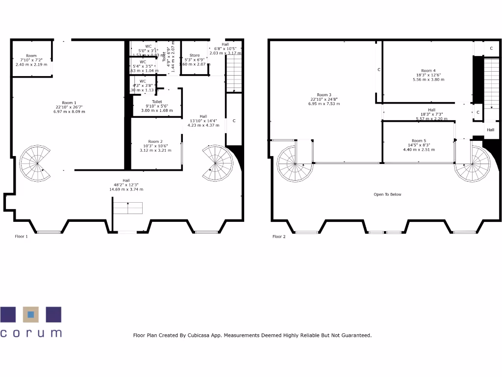
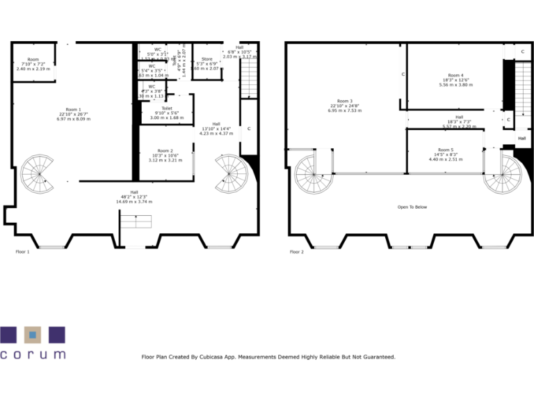
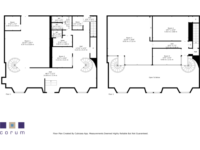
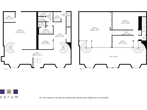
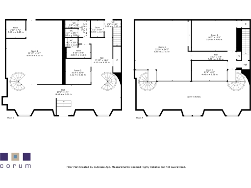
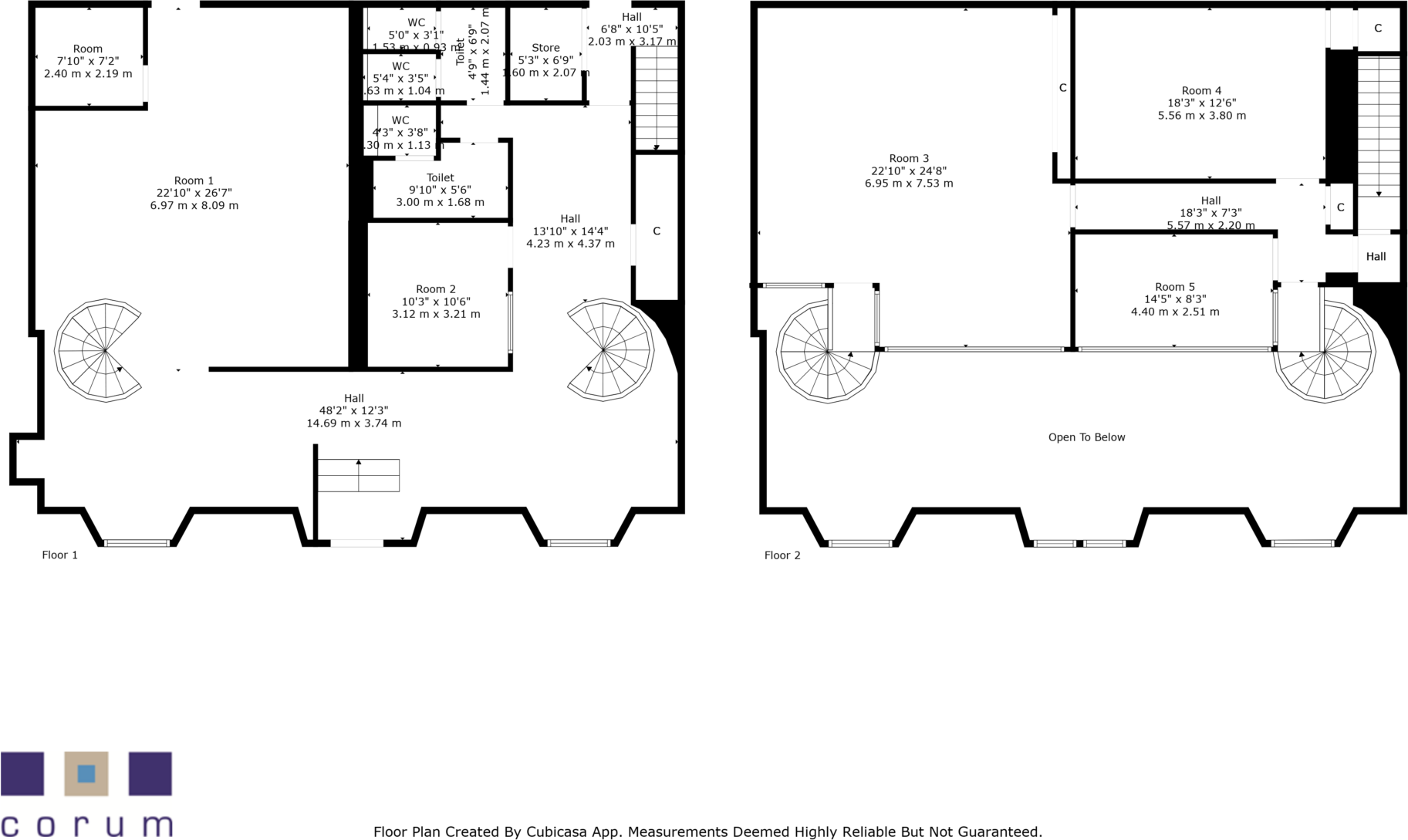
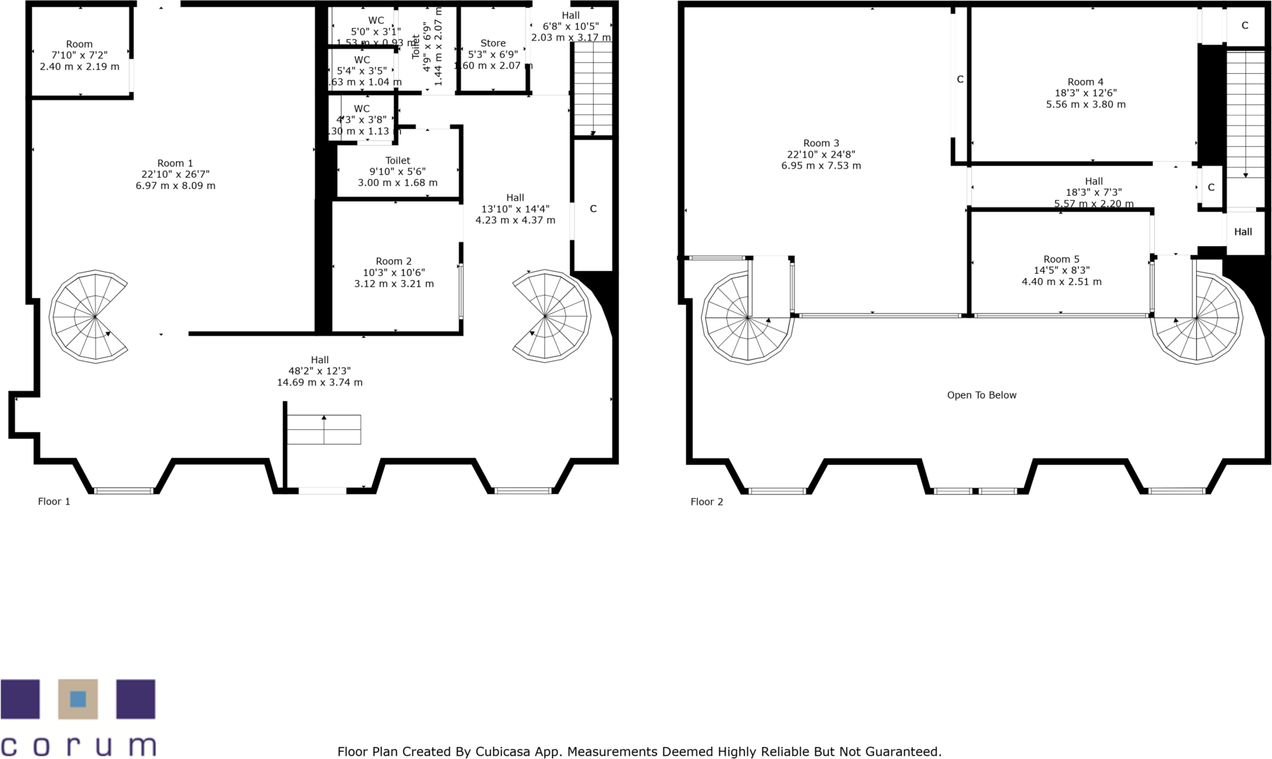
Extremely large 2,809 sqft with very high ceilings and mezzanine potential
Category A listed — conservation consents required; restrictions likely
Currently office-configured; conversion to residential needs planning
Built 1856 — period features present; specialist surveys and works expected
No private garden; on-street parking only; central West End position
Good mobile signal; average broadband speeds
Area classed as deprived — may affect rental demand and timings
A rare, substantial freehold unit in Glasgow’s prestigious Park District, offered as a ground-floor main-door space within the historic Trinity Building. The property totals approximately 2,809 sqft with very high ceilings, generous room proportions and retained period character — an attractive blank canvas for a residential conversion or boutique office, subject to consents. Its elevated position near Kelvingrove Park and the West End’s amenities gives strong location appeal.
This is an opportunistic purchase for an investor or developer who understands working with listed buildings. The building is Category A listed, so any conversion will require conservation and planning approvals and will likely incur higher professional and build costs. The current layout reads as office accommodation and will need significant design and refurbishment work to create contemporary residential accommodation.
Practical considerations are both positive and limiting: freehold tenure, excellent mobile signal and no flood risk are advantages; however broadband speeds are average, there’s no private garden, on-street parking only and the local area is classified as economically deprived which may affect rental performance and timings. Prospective buyers should budget for specialist conservation advice, potential restrictions on external and internal alterations, and asbestos/old-services surveys due to the building’s age.
In short: a prominent, characterful and very large space in a premier West End address with clear upside for the right buyer, but one that requires expertise, planning patience and capital to unlock its residential or boutique-use potential.
2 bedroom apartment for sale in Lynedoch Street, Park, Glasgow, G3 — £195,000 • 2 bed • 1 bath • 688 ft²
3 bedroom apartment for sale in Lynedoch Street, Park, Glasgow, G3 — £335,000 • 3 bed • 1 bath • 922 ft²
2 bedroom ground floor flat for sale in Flat 20, 35, Lynedoch Street, Park District, Glasgow, G3 6AA, G3 — £215,000 • 2 bed • 1 bath • 615 ft²
2 bedroom duplex for sale in Flat 3 9 Lynedoch Place, Park G3 6AB, G3 — £699,000 • 2 bed • 3 bath • 2045 ft²
2 bedroom flat for sale in 2B 6 Lynedoch Street, Park, G3 6EG, G3 — £289,000 • 2 bed • 2 bath • 1023 ft²
2 bedroom flat for sale in Flat 4 11A Lynedoch Street, Park, G3 6EF, G3 — £279,000 • 2 bed • 2 bath • 904 ft²


































































