**Key Features:**
- Modern 2024 Regal Charmouth park home
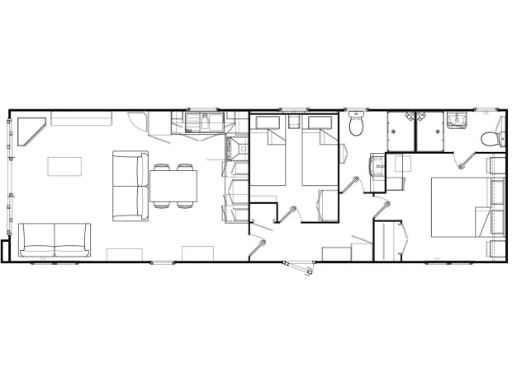
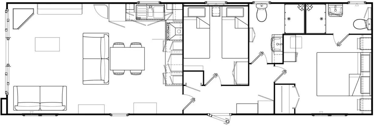
- Two spacious bedrooms, two bathrooms
- 42 x 13 ft layout, comfortably sleeps 6
- Chain-free, newly built with aluminum siding and double glazing
- Open-plan living area with electric fireplace and French doors
- Integrated kitchen appliances including dishwasher and microwave
- Expansive master bedroom with en-suite
- Garden space for outdoor enjoyment
- Located in family-friendly area near schools and local amenities
This stunning 2024 Regal Charmouth park home is a remarkable retreat, offering an exquisite blend of comfort and contemporary design. Perfect for families or first-time buyers, the bright, open-plan living area is ideal for relaxation, featuring cozy seating and an electric fireplace that invites cozy evenings. The kitchen boasts modern integrated appliances, making meal times a delight, and the spacious dining area is perfect for entertaining.
With two generous bedrooms, including a master suite with an en-suite bathroom, this property balances privacy and communal living beautifully. The potential for outdoor space is maximized with French doors leading to a garden area, perfect for entertaining or simply enjoying the peaceful surroundings. Situated in an affluent, family-friendly neighborhood, this home is close to well-regarded schools, ensuring convenience for families.
Note that this property is chain-free and ready for immediate occupancy, representing a rare opportunity in the market. Given its modern finishes and location, this opportunity won't last long—arrange your viewing today and start imagining your life in this stunning holiday home!
2 bedroom park home for sale in Manor Road, Hayling Island, PO11 — £64,995 • 2 bed • 1 bath • 432 ft²
2 bedroom park home for sale in Manor Road, Hayling Island, Hampshire, PO11 — £69,995 • 2 bed • 1 bath
2 bedroom park home for sale in Manor Road, Hayling Island, Hampshire, PO11 — £29,995 • 2 bed • 2 bath
2 bedroom park home for sale in Manor Road, Hayling Island, Hampshire, PO11 — £71,800 • 2 bed • 2 bath
2 bedroom detached house for sale in Manor Road, Hayling Island, Hampshire, PO11 — £89,995 • 2 bed • 1 bath
3 bedroom park home for sale in Manor Road, Hayling Island, Hampshire, PO11 — £189,995 • 3 bed • 2 bath










































































