Chain-free three-bedroom home with south-facing garden and extension potential (STPP)..
Chain-free three-bedroom end-terrace with two-storey layout
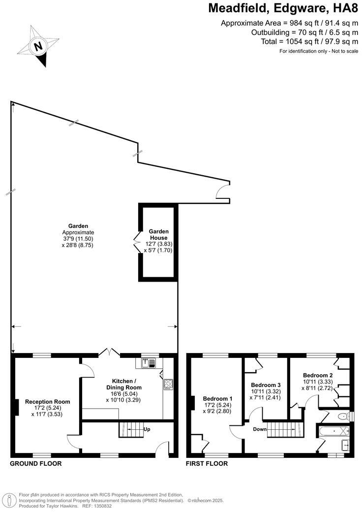
This chain-free, three-bedroom end-of-terrace in Meadfield offers practical family living with a sunny south-facing rear garden and an outhouse. The house has been well maintained and benefits from good natural light throughout, double glazing, mains gas central heating and straightforward rooms arranged over two storeys. Its location within the eruv and close to bus routes provides convenient links to Edgware and nearby amenities.
The property suits young families or first-time buyers seeking a sensible starter home or buy-to-let investors wanting a let-ready layout. There is potential to increase living space with a rear extension subject to planning permission (STPP). Nearby schools include Broadfields Primary and several highly rated secondaries within easy reach.
Buyers should note the local area records above-average crime and the wider neighbourhood shows signs of deprivation. The plot is described overall as small, though the rear garden is useable and relatively generous for an urban plot. Internal condition appears good but prospective purchasers should verify finishes and services in person.
3 bedroom end of terrace house for sale in Meadfield, Edgware, HA8 — £500,000 • 3 bed • 1 bath
3 bedroom end of terrace house for sale in Fairmead Crescent, Edgware, HA8 — £545,000 • 3 bed • 1 bath • 1204 ft²
3 bedroom terraced house for sale in Meadfield, Edgware, HA8 — £525,000 • 3 bed • 1 bath • 854 ft²
3 bedroom end of terrace house for sale in Bushfield Crescent, Edgware, HA8 — £539,000 • 3 bed • 1 bath • 1022 ft²
3 bedroom end of terrace house for sale in Cressingham Road, Edgware, HA8 — £600,000 • 3 bed • 1 bath • 872 ft²
3 bedroom terraced house for sale in Fairfield Crescent, Edgware, Middlesex, HA8 — £529,950 • 3 bed • 1 bath • 826 ft²










































































