Large garden and great transport links close to Hackney Central.
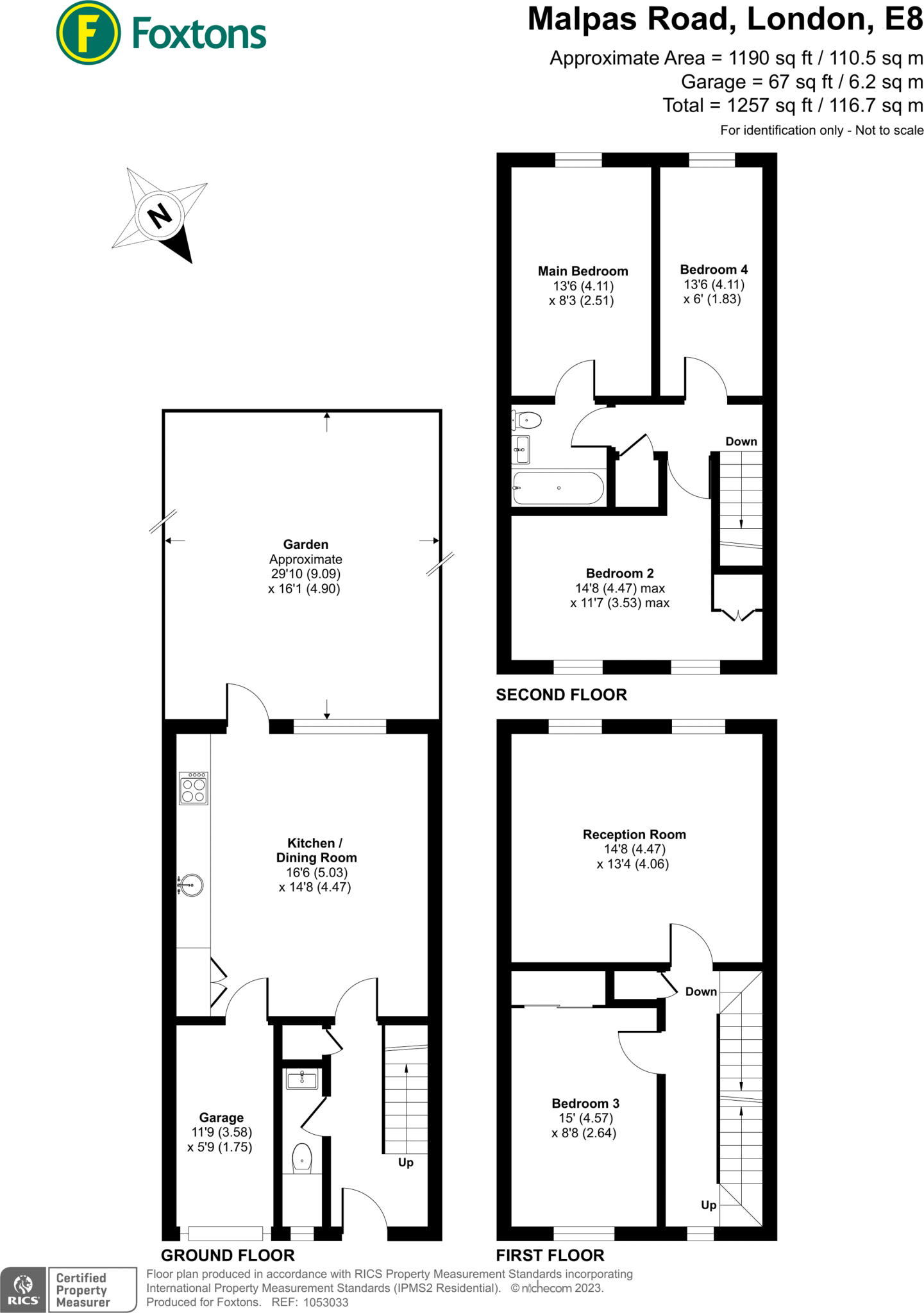
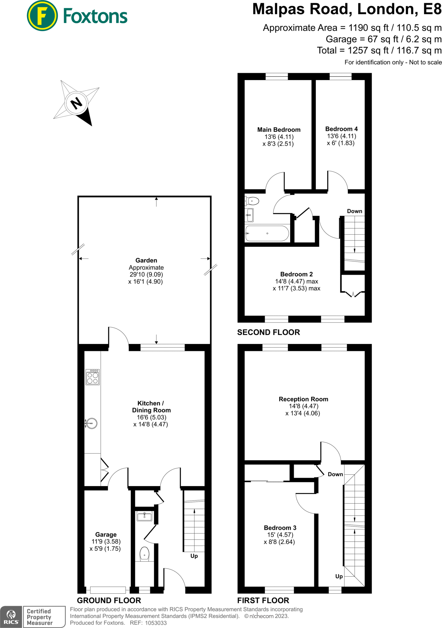
Four bedrooms across three floors, generous reception room
This mid-20th-century terraced house on Malpas Road offers practical family living across three floors with four well-proportioned bedrooms and a bright reception room. The eat-in kitchen includes fitted appliances and dining space, opening onto a substantial rear garden with patio — ideal for outdoor family time and entertaining.
The property is freehold and about 1,257 sq ft, located moments from Hackney Central and local transport links, with excellent mobile and fast broadband speeds. Nearby schools include several rated Good or Outstanding, making the location convenient for families. The plot is notably large for the street, offering scope for landscaping or extension (subject to consents).
Buyers should note the house shows mid-century fittings and some dated fixtures; updating and cosmetic work are likely needed to suit modern tastes. Double glazing is installed but predates 2002, and the property was constructed in the 1950s–60s. The surrounding area has very high crime levels and high deprivation indices, which are important factors for consideration.
Overall this is a spacious family home with clear potential for improvement and value-add, particularly for buyers seeking space near Hackney Central who are prepared to carry out targeted updates.
4 bedroom house for sale in Malpas Road, Hackney, E8 — £750,000 • 4 bed • 1 bath • 1248 ft²
4 bedroom town house for sale in Malpas Road, London, E8 — £750,000 • 4 bed • 1 bath • 1264 ft²
4 bedroom terraced house for sale in Prince George Road, Stoke Newington, London, N16 — £1,250,000 • 4 bed • 2 bath • 1707 ft²
4 bedroom end of terrace house for sale in Terrace Road, London, E9 — £1,250,000 • 4 bed • 3 bath • 1591 ft²
4 bedroom terraced house for sale in Howard Road, Stoke Newington, London, N16 — £850,000 • 4 bed • 2 bath • 1124 ft²
4 bedroom house for sale in Kenworthy Road, Hackney, London, E9 — £975,000 • 4 bed • 2 bath • 1545 ft²


























































































































