SR6 9RW - 3 bedroom terraced house for sale in Laburnum Road, Sunderl…

View on Property Piper

3 bedroom terraced house for sale in Laburnum Road, Sunderland, Tyne and Wear, SR6

Summary - 68 LABURNUM ROAD SUNDERLAND SR6 9RW

3 bed 2 bath Terraced

Three-bedroom terraced home in Fulwell with low-maintenance yard and good schools nearby.
Three bedrooms and two bathrooms, flexible family layout
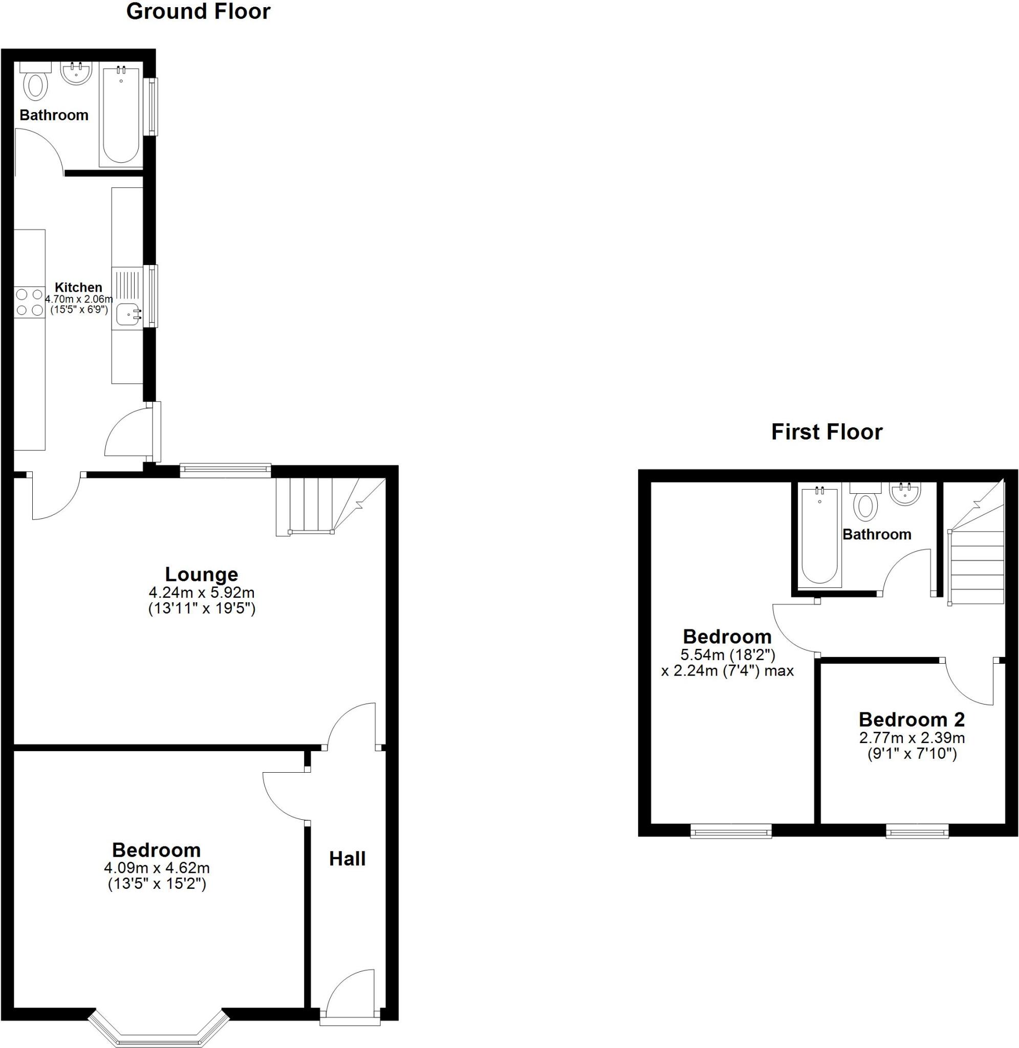
This three-bedroom mid-terrace in Fulwell offers practical family accommodation across approximately 1022 sq ft. The layout is traditional and straightforward: a ground-floor reception, fitted kitchen and bathroom, with two bedrooms and a contemporary family bathroom upstairs. The property is freehold and sits on a small, low-maintenance rear yard — ideal for morning coffee or light gardening.

Location and services are strong selling points. Crime levels are very low, broadband and mobile signals are excellent, and several well-rated primary and secondary schools are within easy reach. Mains gas central heating, double glazing (post-2002) and a mid-20th century red-brick facade give the house solid, familiar construction and street appeal.

Buyers should note material points: the EPC is grade D and the cavity walls are assumed to have no insulation, which may mean higher running costs or the need for future improvements. The plot is small and room sizes are average, so the house suits families seeking convenience and local amenities rather than large garden space. Overall, the property presents a practical, affordable route into Fulwell with clear potential for energy improvements and modest refurbishment to add value.

Property Details

Image Descriptions

Rooms

Textual Property Features

Target Audience

AI Tags

Detected Visual Features

EPC Details

Nearby Schools

Nearest Bars And Restaurants

,,,,}

Nearest General Shops

,,}

Nearest Grocery shops

,,}

Nearest Supermarkets

,,}

Nearest Religious buildings

,,}

Nearest Medical buildings

,,,}

Nearest Airports

,}

Nearest Leisure Facilities

,,,,}

Nearest Tourist attractions

,,}

Nearest Train stations

,,,,}

Nearest Bus stations and stops

,,,,}

Nearest Hotels

,,}

Tags

Local Market Stats

AirBnB Data

Similar Properties

Meta

High Res Images

Compatible Images

Low res Images

Thumbnails

Raw Images

High Res Floorplan Images

Compatible Floorplan Images

Low res Floorplan Images

FloorplanImages Thumbnail

Raw Floorplan Images