**Standout Features:**
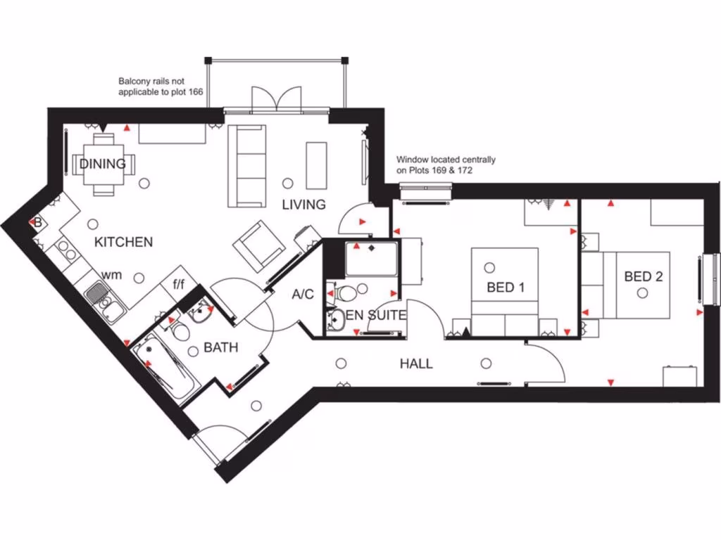
- Spacious two double bedroom, one-bathroom apartment
- Open-plan living area with French doors opening to a private balcony
- Modern kitchen with integrated appliances (dishwasher, fridge/freezer, washer dryer, oven, and gas hob)
- Allocated parking with visitor parking available
- Located moments from Hertford town center and Hartham Common
- Long lease and NHBC Guarantee for added peace of mind
- Top-rated nearby schools (Ofsted ratings: Outstanding and Good)
**Potential Downsides:**
- Leasehold tenure may require considerations regarding future costs and management
- Council Tax Band C may suggest moderate ongoing costs
This modern first-floor apartment is perfect for families seeking comfort and convenience. With its bright, spacious layout and contemporary design, the open-plan living space is ideal for entertaining or relaxing. The master bedroom features a private en-suite, providing a sanctuary for parents, while the second bedroom is perfect for a child or guest. The property’s proximity to excellent schools makes it an attractive option for families.
Located in an affluent area, you can enjoy fast broadband and off-street parking in a vibrant community that boasts great local amenities and easy access to public transport, including nearby Hertford East for quick journeys into London. Don't miss the opportunity to make this delightful apartment your new home!
2 bedroom apartment for sale in Constables Way, Hertford, SG13 — £300,000 • 2 bed • 2 bath • 779 ft²
2 bedroom apartment for sale in Arnold Close, Hertford, Hertfordshire, SG13 — £315,000 • 2 bed • 1 bath • 686 ft²
2 bedroom flat for sale in Constables Way, Hertford, SG13 — £280,000 • 2 bed • 1 bath • 506 ft²
2 bedroom apartment for sale in Constables Way, Hertford, SG13 — £300,000 • 2 bed • 2 bath • 708 ft²
2 bedroom penthouse for sale in Ebenezer Court, North Road, Hertford, SG14 — £375,000 • 2 bed • 2 bath • 783 ft²
2 bedroom apartment for sale in Fallow Rise, Hertford, Hertfordshire, SG13 — £293,000 • 2 bed • 1 bath • 540 ft²


















































