**Standout Features:**
- Four spacious bedrooms
- En-suite bathroom in the main bedroom
- Generous 32 ft x 28 ft fully enclosed rear garden
- Off-road parking for multiple vehicles and integrated garage
- Well-maintained family-friendly neighborhood
- Close proximity to highly rated schools (Knightwood Primary and Thornden Secondary)
- Chain-free sale
- Fast broadband and low crime rate
**Concise Summary:**
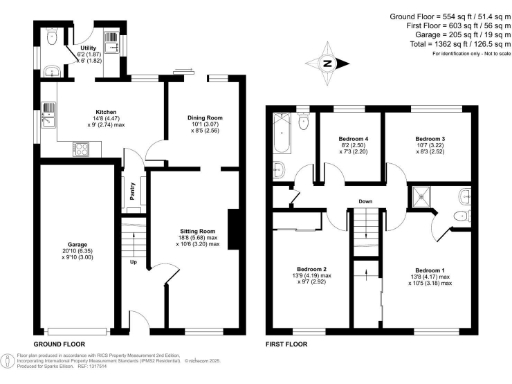
Discover this charming four-bedroom semi-detached house nestled in the sought-after Knightwood Park neighborhood, perfect for families and first-time buyers. Boasting a well-proportioned 1362 sq ft layout, the ground floor features a bright 18' sitting room, a dining room with double doors leading to a generous rear garden, and a practical kitchen/breakfast room with modern appliances. The upstairs includes three sizable bedrooms, a smaller fourth bedroom, a family bathroom, and an en-suite for added convenience.
The property offers off-road parking, a garage, and is enhanced by a lovely, fully enclosed garden ideal for family gatherings or outdoor activities. With a price of £475,000 and situated within exceptional school catchment areas, this home represents an excellent opportunity in a highly desirable, affluent area with a strong sense of community. Act swiftly, as homes like this in such a prominent location are rarely available for long!
4 bedroom detached house for sale in Wild Cherry Way, Knightwood Park, Chandler's Ford, SO53 — £525,000 • 4 bed • 2 bath • 1356 ft²
3 bedroom detached house for sale in Harvest Road, Knightwood Park, Chandler's Ford, SO53 — £450,000 • 3 bed • 1 bath • 952 ft²
3 bedroom link detached house for sale in Tomkyns Close, Chandler's Ford, Eastleigh, Hampshire, SO53 — £400,000 • 3 bed • 2 bath • 897 ft²
4 bedroom detached house for sale in Catmint Close, Knightwood Park, Chandler's Ford, SO53 — £699,950 • 4 bed • 3 bath • 1618 ft²
3 bedroom semi-detached house for sale in Fairbairn Walk, Knightwood Park, Chandler's Ford, SO53 — £375,000 • 3 bed • 2 bath • 1100 ft²
3 bedroom end of terrace house for sale in Jack Close, Knightwood Park, Chandler's Ford, SO53 — £350,000 • 3 bed • 2 bath • 752 ft²


















































































