CH43 5SD - 3 bed picture postcard cottage in Fairview Road, CH43 5SD

View on Property Piper

3 bedroom semi-detached house for sale in Fairview Road, Oxton, CH43

Summary - 21 FAIRVIEW ROAD PRENTON CH43 5SD

3 bed 2 bath Semi-Detached

Spacious family home with secluded south‑facing gardens and generous parking.
Sandstone cottage with strong period character
A picture‑postcard sandstone semi offering spacious, well‑presented family accommodation across multiple levels. The house delivers flexible living with three reception rooms, a smart new fitted kitchen and two shower rooms, making it comfortable for everyday family life and social entertaining.

The gardens are a standout: a sun‑facing patio leads to a surprisingly secluded, enclosed "Secret Garden" beyond, and the large plot includes generous off‑street parking—rare in the village. Large sash windows and double glazing (fitted post‑2002) keep rooms bright, while mains gas central heating provides reliable warmth.

Buyers should note this is a pre‑1900 sandstone property with original stone/limestone walls that are assumed uninsulated—there may be scope and cost to improve thermal performance. Council tax is above average for the area. Overall, this home combines striking period character, useful modern upgrades and genuine outdoor privacy, well placed for Oxton Village amenities and quick road access to the tunnel.

Property Details

Brochure Descriptions

Image Descriptions

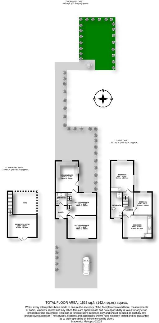
Floorplan Description

Rooms

Textual Property Features

Target Audience

AI Tags

Detected Visual Features

EPC Details

Nearby Schools

Nearest Bars And Restaurants

,,,,}

Nearest General Shops

,,}

Nearest Grocery shops

,,}

Nearest Supermarkets

,,}

Nearest Religious buildings

,,}

Nearest Medical buildings

,,,}

Nearest Airports

}

Nearest Leisure Facilities

,,,,}

Nearest Tourist attractions

,,}

Nearest Train stations

,,,,}

Nearest Bus stations and stops

,,,,}

Nearest Hotels

,,}

Tags

Local Market Stats

AirBnB Data

Similar Properties

Meta

High Res Images

Compatible Images

Low res Images

Thumbnails

Raw Images

High Res Floorplan Images

Compatible Floorplan Images

Low res Floorplan Images

FloorplanImages Thumbnail

Raw Floorplan Images