Four-bed detached home with south garden and extension potential in desirable High Legh.
Chain free with immediate vacant possession potential
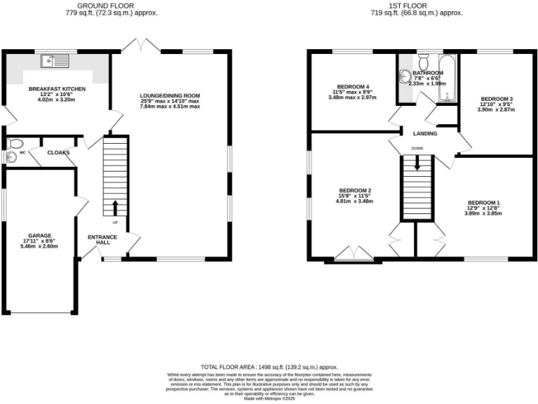
Set on an elevated plot in sought-after High Legh, this four-bedroom detached home offers a rare, chain-free opportunity for a family to create a contemporary living space. The house sits on a decent plot with a mature south-facing garden, strong privacy screening and pleasant open views to the front plus the landmark St John’s Church to the rear. Its position gives easy access to Lymm, Knutsford and Altrincham, plus excellent school catchments and motorway links.
The existing layout includes a large combined living/dining room, separate breakfast kitchen, downstairs WC, four good bedrooms and a family bathroom. The property is tidy externally but ripe for modernisation inside — ideal for buyers seeking reconfiguration to open-plan living or an extension (subject to planning permission). The garage and driveway provide useful off-street parking.
Practical points to note: the house was built c.1967–75 and requires internal updating; there is only one family bathroom; council tax is high; and any extension or major works will need STPP. With no onward chain and a generous, private garden, the house suits a growing family or buyers looking to add value through renovation.
4 bedroom detached house for sale in Pheasant Walk, High Legh, Knutsford, WA16 6QA, WA16 — £450,000 • 4 bed • 1 bath • 1626 ft²
4 bedroom detached house for sale in Robert Moffat, High Legh, Knutsford, WA16 — £875,000 • 4 bed • 2 bath • 2578 ft²
5 bedroom detached house for sale in Whitson Close, High Legh, Knutsford, WA16 6UD, WA16 — £850,000 • 5 bed • 2 bath • 2413 ft²
4 bedroom detached house for sale in Ulviet Gate, High Legh, Knutsford, WA16 — £565,000 • 4 bed • 2 bath • 1642 ft²
4 bedroom house for sale in Egerton, High Legh, Knutsford, WA16 — £850,000 • 4 bed • 3 bath • 2623 ft²
5 bedroom detached house for sale in Pheasant Walk, Pheasant Walk, High Legh, Cheshire, WA16 — £975,000 • 5 bed • 3 bath • 2154 ft²






























































































