EX5 4HP - 2 bed grade ii village cottage in Fore Street, EX5 4HP

View on Property Piper

2 bedroom terraced house for sale in Fore Street, Silverton, Exeter, Devon, EX5

Summary - 2, Fore Street, Silverton EX5 4HP

2 bed 1 bath Terraced

Character-filled two-bed cottage with long garden and village convenience, minutes from Exeter.
Grade II listed cottage dating to 1460 with strong historic character
Dual-aspect living room with inglenook fireplace and wood-burning stove
Contemporary fitted kitchen (installed 2020) and modern bathroom
Two double bedrooms; principal bedroom with walk-in wardrobe
Long landscaped garden with summer house/studio and lawn (c.18m)
No off-street parking currently; potential to create parking subject to permissions
Stone walls likely uninsulated; secondary glazing only — thermal upgrades limited
Listed status will restrict alterations and may complicate renovations
This Grade II listed cottage in the heart of Silverton blends centuries of character with modern comforts. The dual-aspect living room features an impressive exposed-stone inglenook and wood burner, while exposed beams and solid wood floors add authentic charm throughout. The contemporary kitchen (fitted 2020) and modern bathroom provide move-in-ready convenience alongside period features.

Outside, a long, landscaped cottage garden (c.18m) offers private outdoor space with a summer house/studio (light and power) and scope to create off-street parking for two cars at the rear, subject to permissions. The principal bedroom benefits from a walk-in wardrobe; both bedrooms are good doubles with character beams.

Important considerations: the property is Grade II listed, which will restrict alterations and may complicate changes such as installing insulation or creating new openings. The stone walls are likely uninsulated and glazing is secondary, so further improvements for thermal efficiency may be limited and require listed-building consent. Parking is currently on-street; converting the garden to parking would need approval.

Positioned centrally in a sought-after Exe Valley village, the house is within easy walking distance of local amenities, a good primary school and bus links to Exeter. For buyers seeking a character-rich, recently renovated cottage with sizable gardens and village convenience, this offers a rare combination — provided you’re comfortable with listed-building constraints.

Property Details

Image Descriptions

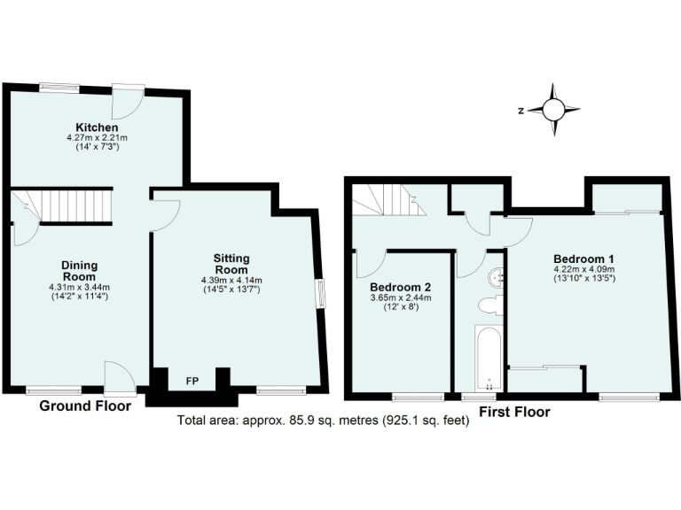
Floorplan Description

Rooms

Textual Property Features

Target Audience

AI Tags

Detected Visual Features

EPC Details

Nearby Schools

Nearest Bars And Restaurants

,,,,}

Nearest General Shops

,,}

Nearest Grocery shops

,,}

Nearest Supermarkets

,,}

Nearest Religious buildings

,,}

Nearest Medical buildings

,,,}

Nearest Airports

}

Nearest Leisure Facilities

,,,,}

Nearest Tourist attractions

,,}

Nearest Train stations

,,,,}

Nearest Bus stations and stops

,,,,}

Nearest Hotels

,,}

Tags

Local Market Stats

Similar Properties

Meta

High Res Images

Compatible Images

Low res Images

Thumbnails

Raw Images

High Res Floorplan Images

Compatible Floorplan Images

Low res Floorplan Images

FloorplanImages Thumbnail

Raw Floorplan Images