Compact family home with garage, garden and quick access to parks and schools.
Three bedrooms and two bathrooms in a compact, practical layout
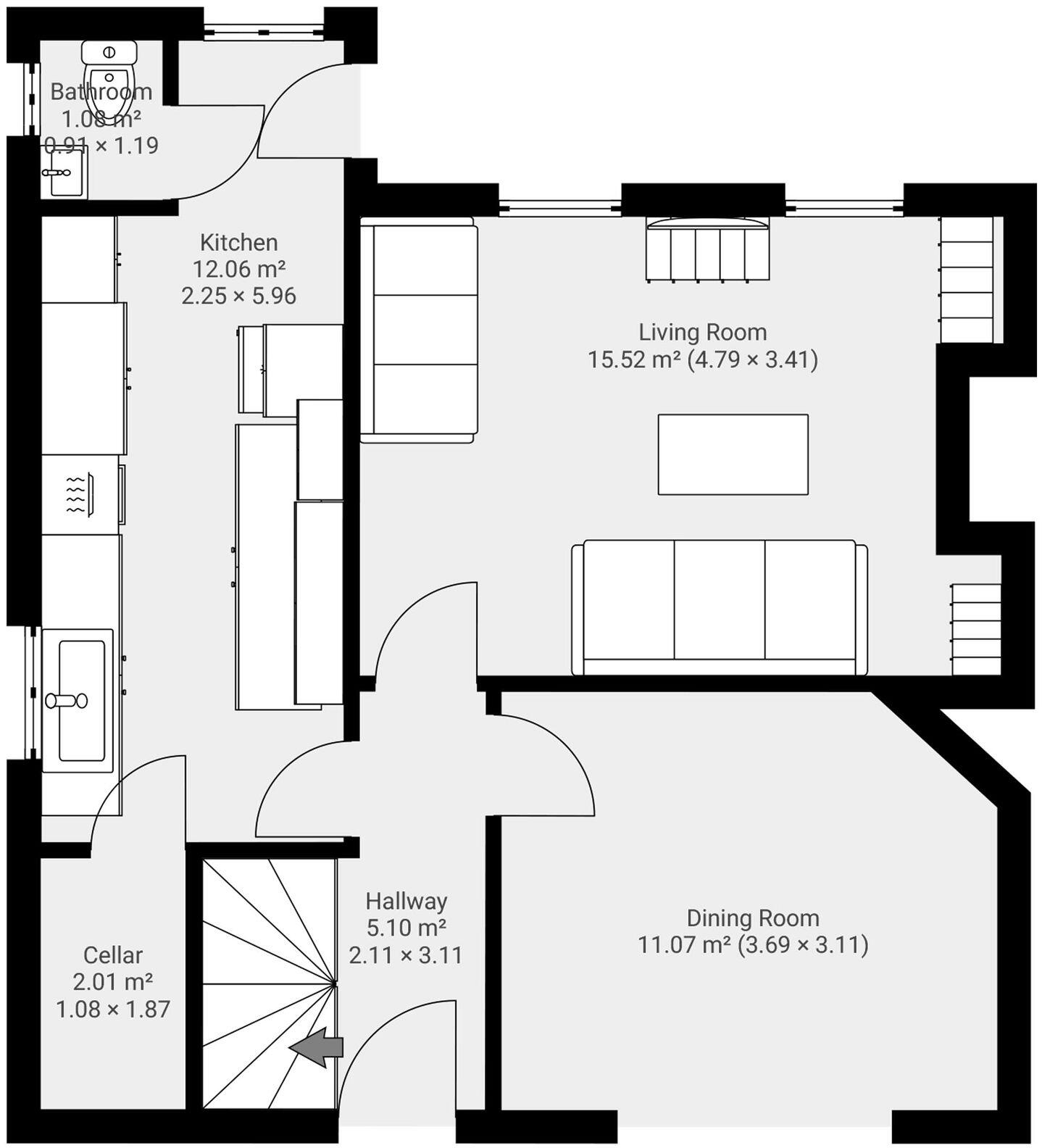
This end-of-terrace town house offers practical family living near Victoria Park and several well-rated schools, including an Outstanding infant and secondary option. Accommodation includes two reception rooms, a contemporary kitchen, three bedrooms, and two bathrooms — arranged over a compact footprint that suits downsizers or young families wanting local amenities.
Outside there are well-kept front, side and rear gardens, plus off-road parking and a useful garage. The plot is a strong asset for the size of the house and provides potential for garden use or storage without immediate work.
Internally the vendor has upgraded the kitchen to a modern spec and the home is presented for immediate occupation in parts; however the overall internal floor area is small at about 547 sq ft. Buyers should note the property sits in a deprived ward and has average local crime statistics, which may influence long-term capital growth.
Practical positives include freehold tenure, council tax band B, fast broadband and no flood risk. EPC details are pending. Early viewing is recommended to appreciate the layout and garden/parking benefits given the compact internal size.
3 bedroom terraced house for sale in Appleton Road, Widnes, WA8 — £175,000 • 3 bed • 1 bath • 988 ft²
3 bedroom town house for sale in Proctors Close, Widnes, WA8 — £170,000 • 3 bed • 1 bath • 686 ft²
3 bedroom end of terrace house for sale in Bechers, Widnes, WA8 — £150,000 • 3 bed • 2 bath • 887 ft²
3 bedroom town house for sale in Afton, Widnes, WA8 — £150,000 • 3 bed • 1 bath • 915 ft²
2 bedroom terraced house for sale in Page Lane, Widnes, WA8 — £160,000 • 2 bed • 1 bath • 603 ft²
3 bedroom semi-detached house for sale in Kensal Green, Widnes, WA8 — £260,000 • 3 bed • 2 bath • 828 ft²


















































































































