Charming four-bedroom cottage with large gardens and approved side extension.
Secluded stone cottage in mature woodland gardens
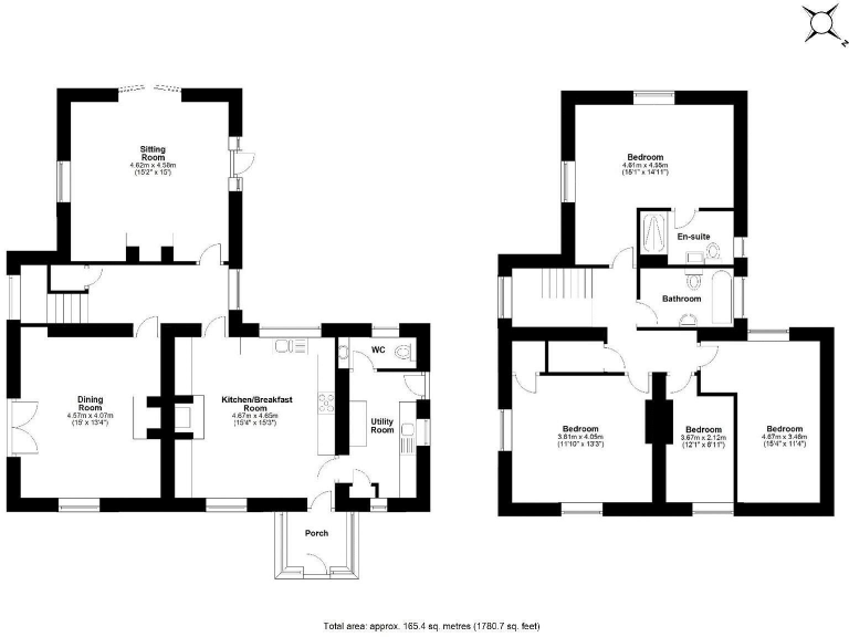
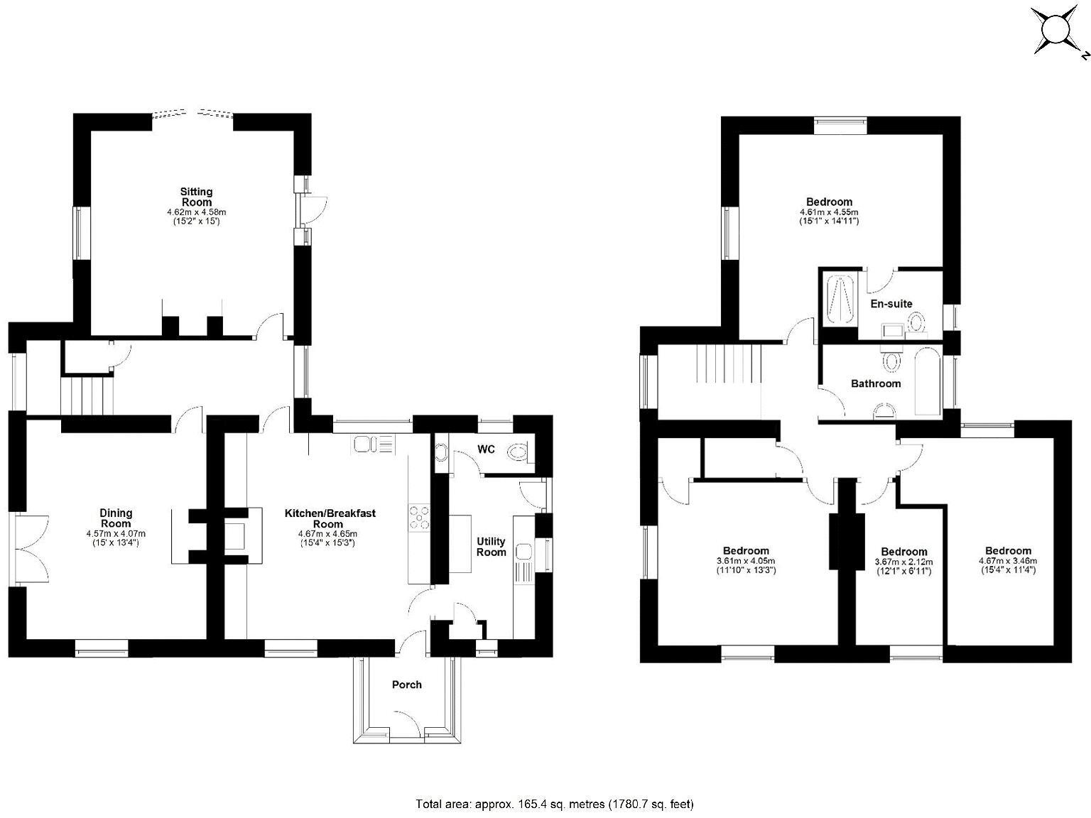
Set deep in Northumbrian woodland, Foresters Cottage is a traditional stone home arranged over two storeys with four bedrooms, two bathrooms and three reception rooms. The house sits within mature, well-established gardens and enjoys excellent privacy, woodland views and large lawns — a rare rural pocket within easy reach of Riding Mill and Corbridge. Planning permission (REF 25/00614/CLPROP) already granted for a side extension provides clear scope to increase living space.
Internally the cottage retains period character: exposed timber floors, solid wood doors, an inglenook fireplace with a multi-fuel burner and a Rangemaster kitchen. French doors open from the sitting and dining rooms onto paved patios facing southwest and east, bringing outdoor life into everyday use. The principal bedroom benefits from an ensuite; three further bedrooms share a family bathroom.
Outside there is a substantial twin timber garage with mains electricity, a forester’s shed, a large outbuilding and a shepherd’s hut — useful for storage, workshops or ancillary accommodation subject to consents. The plot is generous and private, suited to family living, gardening or equestrian/amenity uses common in agricultural communities.
Practical points to note: broadband speeds are very slow and the EPC rating is E, which may require energy upgrades. Services information is to be confirmed. The secluded country setting also means access is via small rural roads; the nearest village amenities and primary schooling are around three miles away, with wider facilities in Corbridge (approx. six miles).
4 bedroom detached house for sale in Southwood Cottage, Riding Mill, NE44 — £850,000 • 4 bed • 3 bath • 2656 ft²
4 bedroom barn conversion for sale in The Cottage, High Waskerley Farm, Shotley Bridge, Northumberland, DH8 — £575,000 • 4 bed • 3 bath • 2352 ft²
4 bedroom detached house for sale in Stocksfield, Northumberland, NE43 — £720,000 • 4 bed • 3 bath • 2070 ft²
3 bedroom detached house for sale in Mohope, Hexham, Northumberland, NE47 — £250,000 • 3 bed • 2 bath • 1189 ft²
3 bedroom semi-detached house for sale in Chopwell Wood, Rowlands Gill, NE39 — £440,000 • 3 bed • 1 bath • 1163 ft²
3 bedroom detached house for sale in Grove Cottage, Redford, Hamsterley, DL13 — £465,000 • 3 bed • 2 bath • 1270 ft²


















































































