Recently refurbished with garage, planning permission and smart controls for modern living.
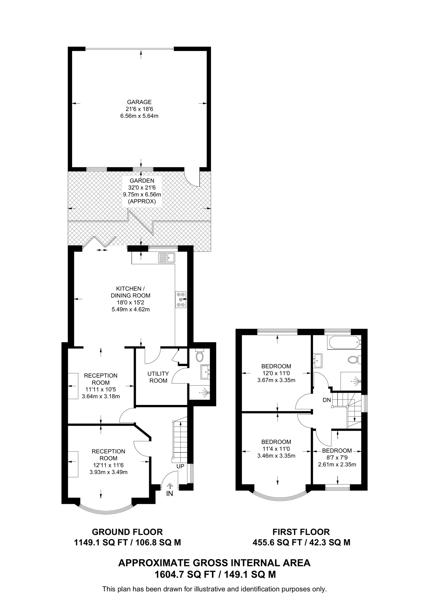
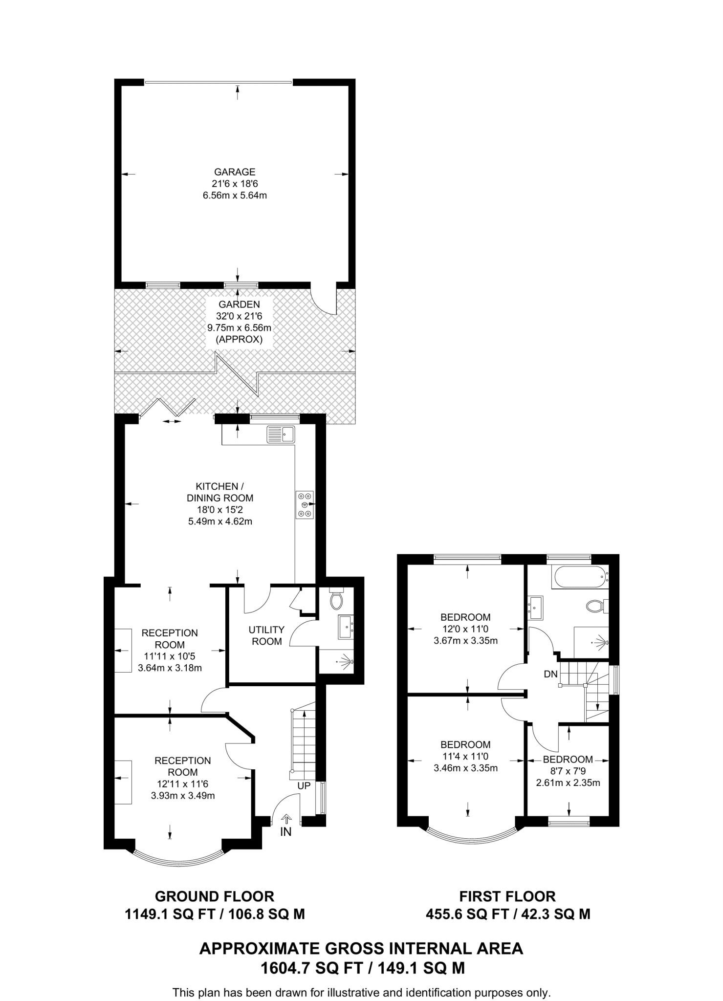
Large 1,604 sq ft family-sized layout across multiple floors
This recently refurbished three-bedroom semi-detached house offers generous living over multiple floors, finished to a high standard and arranged around a modern open-plan kitchen and comfortable reception spaces. The property includes high-spec bathroom fittings, smart heating controls and new double glazing, delivering low-maintenance, efficient living for a growing household.
Practical features include an insulated, alarmed garage with lighting and electrics, driveway parking, a low-maintenance rear garden and planning permission already granted for a loft conversion — ideal for expanding accommodation or adding value. At about 1,604 sq ft the house feels large for the area and suits family life and home working.
Buyers should note this is in a generally deprived ward and local school performance is mixed; several nearby schools are rated lower by Ofsted while one secondary is outstanding. The house is built of solid brick (1930s) and, while recently refurbished throughout, external wall insulation is assumed absent and could be a future upgrade for energy efficiency. Overall the property is freehold, with no flood risk and fast broadband, making it a practical long-term family purchase.
3 bedroom semi-detached house for sale in The Old White Horse, Bushey, WD23 — £875,000 • 3 bed • 2 bath • 2217 ft²
3 bedroom semi-detached house for sale in North Western Avenue, Watford, WD24 — £500,000 • 3 bed • 1 bath • 1035 ft²
3 bedroom semi-detached house for sale in Leggatts Close, Watford, WD24 — £575,000 • 3 bed • 1 bath • 930 ft²
3 bedroom semi-detached house for sale in Blackwell Drive, Watford, WD19 — £700,000 • 3 bed • 1 bath • 1468 ft²
3 bedroom semi-detached house for sale in Berry Avenue, Watford, WD24 — £550,000 • 3 bed • 3 bath • 1313 ft²
3 bedroom semi-detached house for sale in Mallard Way, Watford, WD25 — £550,000 • 3 bed • 1 bath • 1048 ft²


















































































































