**Standout Features:**
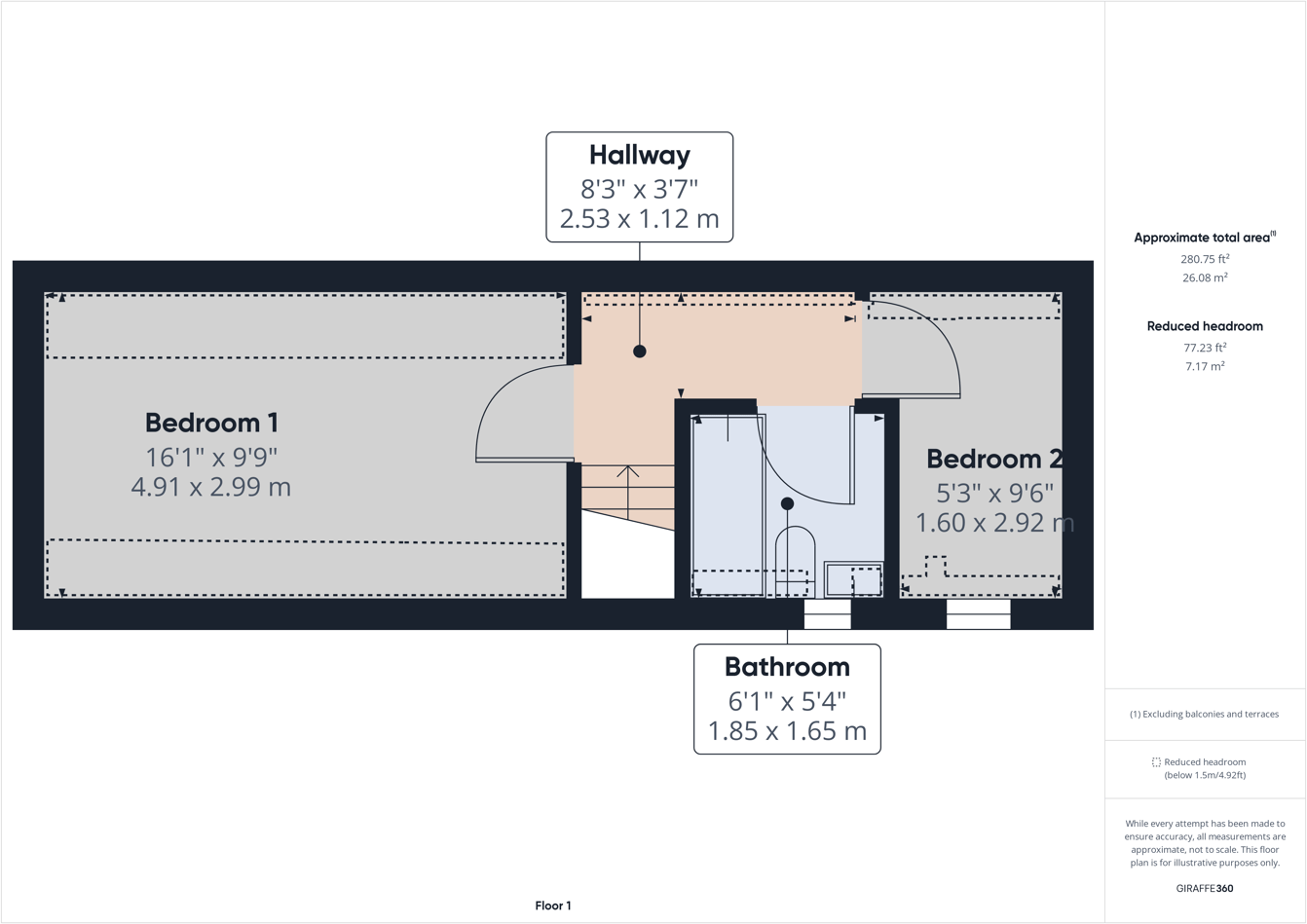
- First-floor flat spanning two levels in a Grade II listed building
- Two bedrooms and a family bathroom
- Spacious 16' living room and 15' fitted kitchen/diner
- Gas central heating and cloakroom
- Allocated off-street parking space
- Central location with walkable amenities including schools, shops, and dining options
- Offered with no onward chain
**Potential Concerns:**
- Limited renovation potential due to listed status
- Average-sized flat with no notable views
- High local crime rate and area deprivation
This charming two-bedroom first-floor flat is nestled within the heart of Downham Market, offering both character and convenience. Spread over two levels, the residence features a well-appointed 15' fitted kitchen/diner and a generous 16' living room, perfect for relaxing or entertaining. Enjoy the benefits of gas central heating and an additional cloakroom for guests.
Embrace a vibrant community lifestyle with an array of amenities just moments away, including reputable primary schools and various shops and restaurants. While its Grade II listing adds historic charm, it may limit renovation options, making this property ideal for those who appreciate classic design and an established neighborhood. An off-street parking space ensures that convenience is a priority, and with no onward chain, this home is ready for you to move in without delay. Seize this opportunity to own a piece of history in Downham Market—properties like this don’t stay on the market for long!
2 bedroom flat for sale in High Street, Downham Market, PE38 — £135,000 • 2 bed • 1 bath • 685 ft²
2 bedroom flat for sale in High Street, Downham Market, Norfolk, PE38 — £110,000 • 2 bed • 1 bath • 765 ft²
2 bedroom apartment for sale in Howdale Road, Downham Market, Norfolk, PE38 — £137,000 • 2 bed • 1 bath • 542 ft²
2 bedroom apartment for sale in Old Town Close, Downham Market, PE38 — £140,000 • 2 bed • 1 bath • 636 ft²
1 bedroom apartment for sale in Howdale Road, Downham Market, PE38 — £115,000 • 1 bed • 1 bath • 549 ft²
1 bedroom flat for sale in Rampant Horse Lane, Downham Market, PE38 — £75,000 • 1 bed • 1 bath • 393 ft²


























































