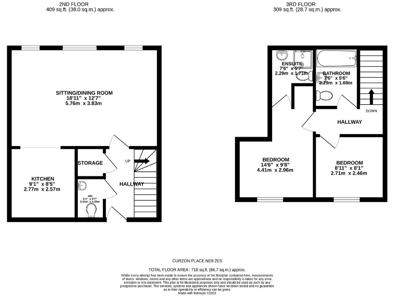
**Standout Features:**
- Contemporary duplex design with two spacious double bedrooms
- Open plan kitchen/living area with stunning Quayside views
- Two bathrooms including an en suite and a downstairs WC
- Secure underground parking
- Top floor position with abundant natural light
- Modern decor and good condition throughout
**Notable Concerns:**
- Located in an area with very high crime rates
- Service charge of £2,800 annually
Discover urban elegance in this contemporary duplex apartment ideally situated near the vibrant River Tyne and within walking distance of Newcastle city centre. With two full-sized double bedrooms and two bathrooms, this stylish abode delivers both comfort and function. The open plan living space is awash with natural light, showcasing spectacular views of the Quayside through floor-to-ceiling windows—a perfect backdrop for entertaining or cozy nights in. The modern kitchen features high-quality integrated appliances, catering to all your culinary needs.
Positioned on the top floor, this apartment offers secure underground parking and access to well-maintained communal grounds, making it a fantastic choice for families, professionals, or savvy investors seeking a rental opportunity. While the local area has a concerning high crime rate, the modern amenities and convenient location outweigh potential downsides. Priced competitively at £130,000, this property is a remarkable find—ideal for those looking for a slice of contemporary living in this cosmopolitan setting. Don’t miss your chance to own this exceptional home!
2 bedroom flat for sale in Curzon Place, Gateshead, NE8 — £130,000 • 2 bed • 2 bath • 812 ft²
2 bedroom apartment for sale in Curzon Place, Gateshead, NE8 — £130,000 • 2 bed • 2 bath • 664 ft²
2 bedroom apartment for sale in Curzon Place, Gateshead, NE8 — £125,000 • 2 bed • 2 bath • 808 ft²
2 bedroom apartment for sale in Kenilworth House, Fletcher Road, Ochre Yards, Gateshead Yards, NE8 — £210,000 • 2 bed • 2 bath
2 bedroom apartment for sale in Baltic Quay, Quayside, NE8 — £160,000 • 2 bed • 2 bath
2 bedroom apartment for sale in Curzon Place, Gateshead Quays, NE8 — £132,000 • 2 bed • 2 bath • 663 ft²










































































