Character-filled house minutes from Peckham Rye Park and local shops.
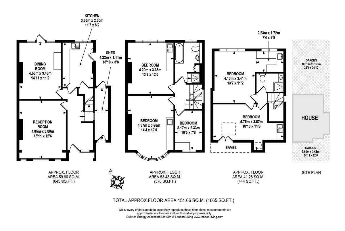
Chain-free five-bedroom 1,666 sq ft semi-detached period home
A spacious, chain-free five-bedroom semi-detached house on Forest Hill Road offering 1,666 sq ft of flexible family space. The home retains 1930s character – including an Art Nouveau fireplace and bay windows – and benefits from a private 36-foot rear garden and off-street parking. Natural light fills the reception and dining rooms, while the rear kitchen opens directly to the garden for easy family living and weekend entertaining.
Practical details suit everyday family life: mains gas central heating with boiler and radiators, double glazing (install date unknown), freehold tenure, and fast broadband with excellent mobile signal. The property sits minutes from Peckham Rye Park and local amenities on Lordship Lane and Rye Lane, with a good choice of primary and secondary schools nearby including several rated Outstanding.
There are some straightforward improvement considerations. The property’s solid brick walls are assumed to lack insulation and the glazing date is unknown, so buyers should budget for thermal upgrades to improve efficiency. With two bathrooms (plus a separate WC) for five bedrooms and a relatively small plot, internal space planning or conversion works could increase long-term value.
This house will suit a family looking for a characterful, well-located home they can update and personalise. Chain-free status and generous internal space make it practical to move into straightaway, while the obvious refurbishment potential offers scope to increase comfort and value over time.
3 bedroom semi-detached house for sale in Forest Hill Road, East Dulwich, SE22 — £999,950 • 3 bed • 1 bath • 1169 ft²
5 bedroom semi-detached house for sale in Underhill Road, East Dulwich, London, SE22 — £1,400,000 • 5 bed • 2 bath • 2092 ft²
5 bedroom terraced house for sale in Underhill Road, East Dulwich, SE22 — £1,595,000 • 5 bed • 2 bath • 1869 ft²
3 bedroom semi-detached house for sale in Derby Hill Crescent, London, SE23 — £850,000 • 3 bed • 1 bath • 1039 ft²
5 bedroom semi-detached house for sale in Overhill Road, East Dulwich, London, SE22 — £1,150,000 • 5 bed • 2 bath • 1504 ft²
5 bedroom house for sale in Thorpewood Avenue, London, SE26 — £1,100,000 • 5 bed • 1 bath • 2379 ft²


































































































