LS28 5UF - 2 bedroom town house for sale in New Park Walk, Farsley, Pu…

View on Property Piper

2 bedroom town house for sale in New Park Walk, Farsley, Pudsey, West Yorkshire, LS28

Summary - 11 NEW PARK WALK FARSLEY PUDSEY LS28 5UF

2 bed 1 bath Town House

**Standout Features:**
- Two double bedrooms with views over Hainsworth Park
- Extended living room and enclosed rear garden
- Off-street parking and garage
- Sought-after location in Farsley, ideal for first-time buyers
- Council tax band B; EPC rating C
- Well-presented with recent boiler and window updates

Situated in the thriving community of Farsley, this charming two-bedroom town house offers a perfect blend of comfort and convenience for first-time buyers or small families. Enjoy the lovely vistas over Hainsworth Park from the master bedroom and the spacious, extended living room that invites natural light, creating a warm and inviting atmosphere. The property features two well-sized double bedrooms, a modern bathroom, and a contemporary kitchen fitted with white units, facilitating effortless living.

Step outside to discover an enclosed garden and off-street parking with a garage, ensuring ease and practicality. With local amenities, schools, and vibrant transport links nearby, this home is not only set in a comfortable suburbia but also within easy reach of city conveniences. Don’t miss your chance to own this delightful property; schedule a viewing today before it's gone!

Property Details

Image Descriptions

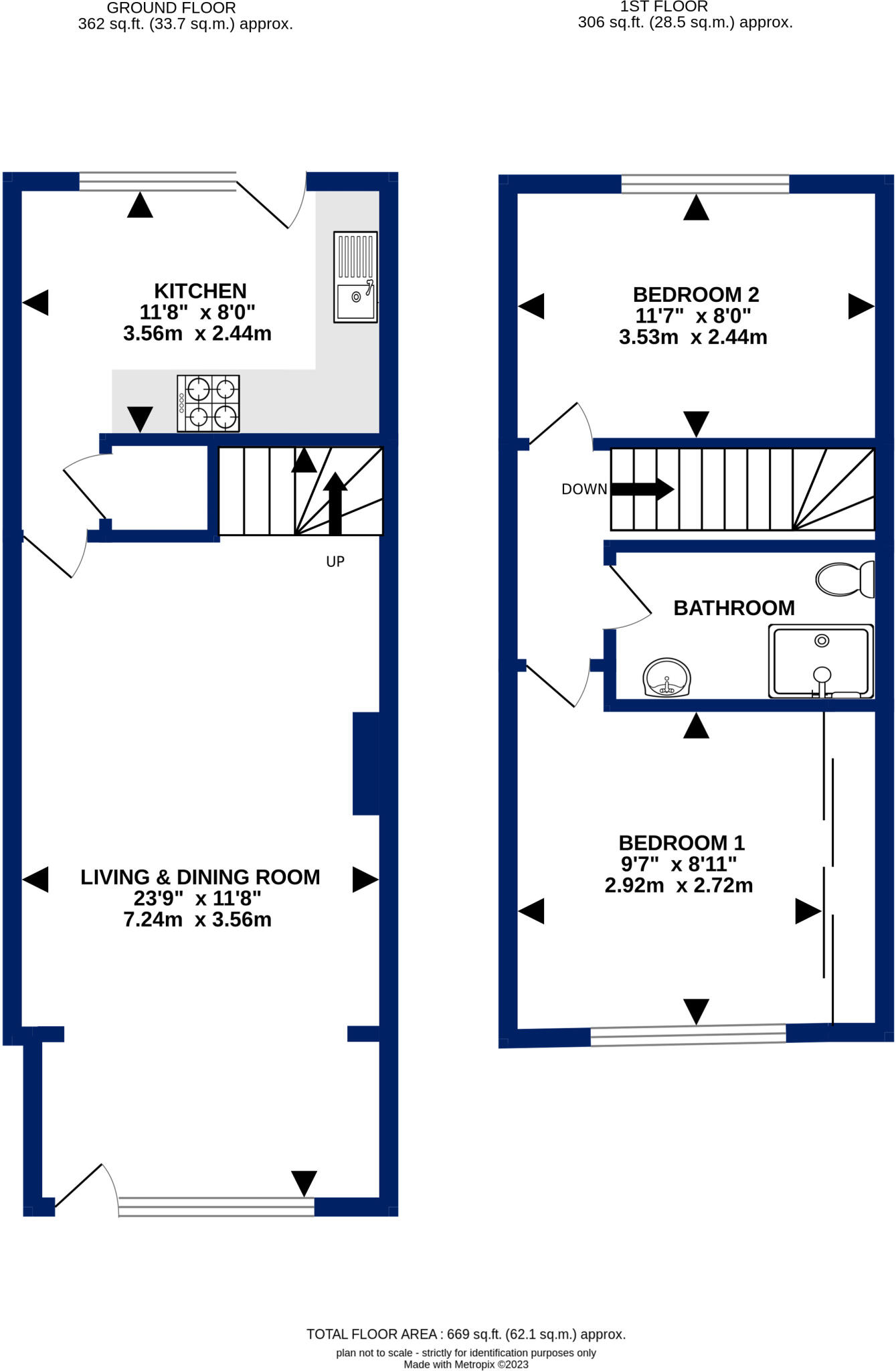
Floorplan Description

Rooms

Textual Property Features

Detected Visual Features

EPC Details

Nearby Schools

Nearest Bars And Restaurants

,,,,}

Nearest General Shops

,,}

Nearest Grocery shops

,,}

Nearest Supermarkets

,,}

Nearest Religious buildings

,,}

Nearest Medical buildings

,,,}

Nearest Airports

}

Nearest Leisure Facilities

,,,,}

Nearest Tourist attractions

,,}

Nearest Train stations

,,,,}

Nearest Bus stations and stops

,,,,}

Nearest Hotels

,,}

Tags

Local Market Stats

AirBnB Data

Meta

High Res Images

Compatible Images

Low res Images

Thumbnails

Raw Images

High Res Floorplan Images

Compatible Floorplan Images

Low res Floorplan Images

FloorplanImages Thumbnail

Raw Floorplan Images