Spacious four-bedroom house on a large plot, steps from beach and lighthouse.
Detached former village hall with unique character and lighthouse views
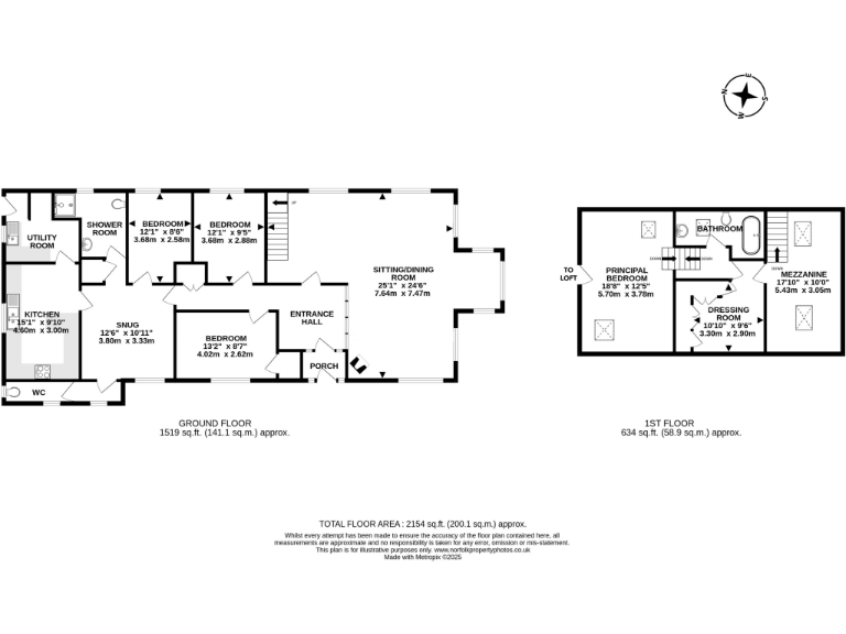
A striking converted former village hall, set within a large plot and just a short walk from Happisburgh beach and the famous lighthouse. The house offers flexible living across two levels: three ground-floor bedrooms with a shower room and a first-floor principal suite with dressing room and bathroom. The open-plan sitting/dining room with mezzanine and a separate snug creates space for family gatherings and flexible home working.
Outdoor space is a genuine asset: a private rear garden with patio and lighthouse views, workshop, shed, greenhouse and a shingle drive providing parking for several vehicles. Practical systems are in place including double glazing and an oil-fired boiler serving radiators, though the property has an Energy Performance Rating of D. Broadband speeds are slow in the area.
This home will suit a family seeking seaside village life, those wanting a spacious plot for gardening or hobbies, and buyers who can embrace modest updating. Council tax is above average and nearby school provision is mixed (some local schools rated Good; one requires improvement), so check individual school catchments if that is a priority. The property is freehold and presents scope to enhance energy efficiency and interior finishes to personalise the home.
3 bedroom semi-detached house for sale in Lighthouse Close, Happisburgh, NR12 — £250,000 • 3 bed • 2 bath • 984 ft²
2 bedroom bungalow for sale in Grub Street, Happisburgh, Norwich, Norfolk, NR12 — £350,000 • 2 bed • 2 bath • 791 ft²
3 bedroom link detached house for sale in Lighthouse Lane, Happisburgh, NR12 — £250,000 • 3 bed • 2 bath • 1272 ft²
3 bedroom detached bungalow for sale in Lighthouse Lane, Happisburgh, NR12 — £325,000 • 3 bed • 2 bath • 1011 ft²
4 bedroom semi-detached house for sale in Beach Road, Happisburgh, Norwich, NR12 — £350,000 • 4 bed • 1 bath • 1486 ft²
2 bedroom detached bungalow for sale in Lighthouse Lane, Happisburgh, NR12 — £325,000 • 2 bed • 1 bath • 1123 ft²














































































































