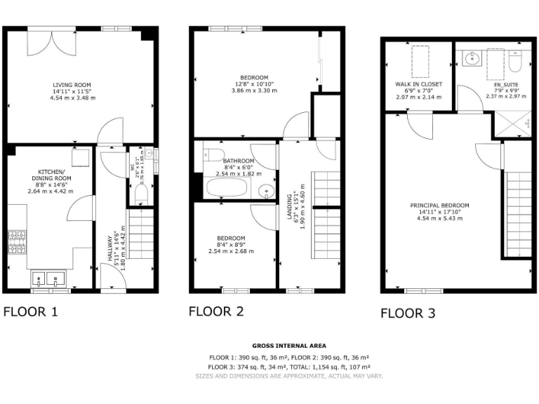
Three bedrooms across three floors, principal ensuite on second floor
Contemporary fitted kitchen with integrated appliances and granite surfaces
Two modern bathrooms; cloakroom on ground floor
Paved, low-maintenance private garden; good for alfresco dining
Carport plus off-street parking for convenience
Chain free and presented in excellent decorative order
Small plot and compact external space
Area has high crime and wider deprivation; council tax above average
This attractive three-bedroom, three-storey town house sits a short walk from Witney’s shops, eateries and leisure facilities, offering convenient family living in the town centre. Presented in excellent decorative order, the home has a contemporary fitted kitchen, two modern bathrooms and a principal ensuite on the top floor, ready for immediate occupation and offered chain free.
The paved, low-maintenance garden provides a private space for alfresco dining and play, while a carport and off-street parking add practical convenience. Living spaces are bright and well-presented across approximately 1,154 sq ft, with mains gas heating via boiler and radiators and an EPC rating of B.
Buyers should note some local and property considerations: the area shows higher crime levels and wider social deprivation indicators, and the plot is small. Council tax is above average. These factors may influence running costs and long-term resale expectations for some purchasers.
Overall, this modern townhouse will suit families or buyers seeking a low-maintenance, centrally located home with immediate usability and good decorative presentation. There is short-term potential to personalise or reconfigure internal spaces if required, but the property is essentially move-in ready.







































































































