Restored historic two-bedroom cottage with unique sunken outdoor kitchen and village charm.
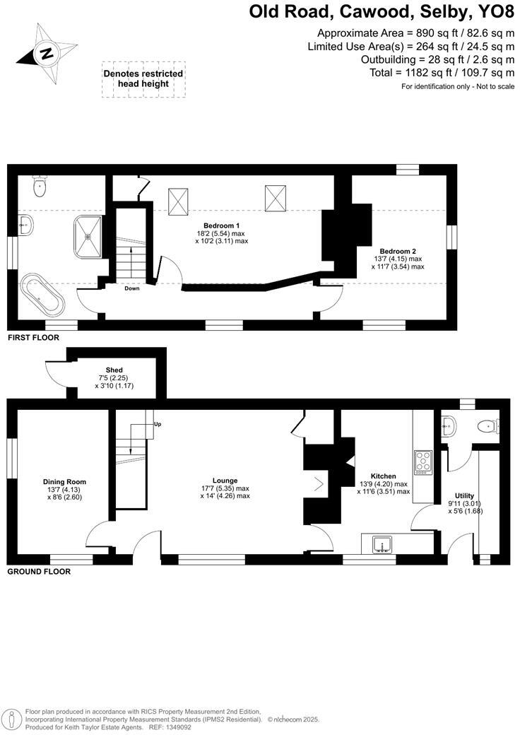
Grade II listed detached cottage with original roof structure and beams
Two double bedrooms; compact modern kitchen and separate utility room
Sunken outdoor kitchen with pizza oven, barbecue and exposed historic well
Feature lounge fireplace with multi-fuel burner; cosy entertaining room
Small, low-maintenance walled garden; private courtyard-style outdoor space
Oil-fired boiler and radiators — oil fuel may be costlier and less common
Solid brick walls (pre-1900) — limited retrofit insulation options
Listing restrictions likely to affect alterations and extension works
A beautifully restored Grade II listed cottage in the heart of Cawood, this detached two-bedroom home combines genuine period character with modern comforts. Exposed timber beams, a feature fireplace with a multi-fuel burner and sympathetic restoration work give the house a charming, bespoke feel. The compact but modern kitchen, separate utility and ground-floor WC add practical convenience for everyday living.
Outside, the low-maintenance walled cottage garden is a standout: a sunken outdoor kitchen with pizza oven, barbecue and an exposed historic well create a private entertaining space rarely found in village properties. The plot is small but neatly landscaped and benefits from free on-street parking directly in front.
Practical details to note: the property uses oil-fired central heating and has solid brick walls typical of pre-1900 construction, which can limit insulation options. As a Grade II listed building, any alterations or extensions will require listed-building consent and may restrict works or add cost. Overall, this is an ideal home for buyers seeking a characterful, low-upkeep village cottage with strong appeal as a permanent home, weekend retreat or holiday-let subject to consents.
Nearest amenities include local shops, a pub and good primary and secondary schools nearby. With very low local crime, excellent mobile signal and fast broadband, the cottage sits comfortably for modern rural living while retaining authentic historic character.
4 bedroom detached house for sale in Old Road, Cawood, YO8 — £390,000 • 4 bed • 2 bath • 1600 ft²
3 bedroom link detached house for sale in Thread Gold Lane, Threadgold Lane, Cawood, North Yorkshire YO8 — £290,000 • 3 bed • 2 bath • 1378 ft²
3 bedroom cottage for sale in Sherburn Street, Cawood, Selby, YO8 — £220,000 • 3 bed • 1 bath • 958 ft²
3 bedroom cottage for sale in High Street, Cawood, YO8 — £250,000 • 3 bed • 1 bath • 1539 ft²
3 bedroom town house for sale in Market Place, Cawood, YO8 — £230,000 • 3 bed • 1 bath • 523 ft²
5 bedroom house for sale in Old Road, Cawood, Selby, YO8 — £525,000 • 5 bed • 2 bath • 2110 ft²


































































































