Bright three-bedroom split-level home minutes from Woolwich rail connections.
- Converted Victorian school with high ceilings and large windows
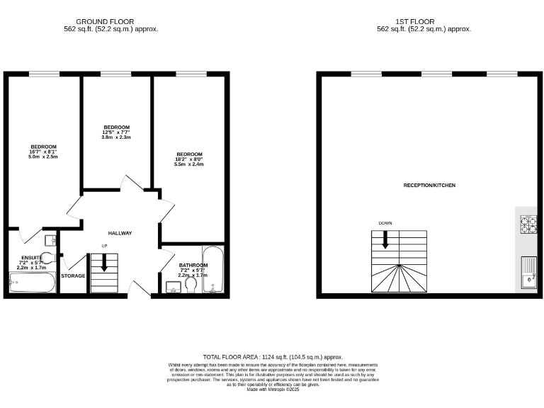
- Split-level, three-bedroom layout across 1,124 sq ft
- Chain-free sale; 103 years remaining on lease
- Gas central heating and double glazed windows
- Solid brick construction; likely no wall insulation
- Slow broadband, higher local crime and area deprivation
- Public notice on file (offer received); internal viewing essential
Set within a converted Victorian school, this split-level three-bedroom maisonette offers distinctive period character and generous ceiling heights. Large windows and exposed brick create bright, airy rooms with an open-plan kitchen/living area that will appeal to buyers seeking personality and space in SE18.
Practical features include gas central heating, double glazing and a long lease of 103 years. The flat is chain-free and vacant possession is available, making it straightforward to buy and move into. At about 1,124 sq ft, the apartment is an average-sized, well-proportioned home for families or first-time buyers wanting extra room.
Buyers should note a few material points: the building dates from 1930–49 and has solid brick walls with assumed no cavity insulation, so further thermal upgrades could be beneficial. Broadband speeds in the area are slow and the local area records higher crime and deprivation levels. A public notice regarding receipt of an offer is registered on the property.
This property suits someone who values character and space and is prepared to carry modest improvement works to maximise comfort and efficiency. Internal viewing is recommended to appreciate the generous proportions and layout potential close to Woolwich rail links.
2 bedroom flat for sale in Bloomfield Road, Plumstead, London, SE18 — £400,000 • 2 bed • 1 bath • 792 ft²
3 bedroom flat for sale in Ann Street, London, SE18 — £410,000 • 3 bed • 2 bath • 892 ft²
1 bedroom flat for sale in Benares Road, London, SE18 — £260,000 • 1 bed • 1 bath • 562 ft²
3 bedroom apartment for sale in Eglinton Hill, Shooters Hill, SE18 — £300,000 • 3 bed • 1 bath • 782 ft²
2 bedroom flat for sale in Schoolhouse Yard, Bloomfield Road, Woolwich, London, SE18 7JD, SE18 — £425,000 • 2 bed • 1 bath • 1013 ft²
1 bedroom apartment for sale in Greenhill Terrace, Woolwich, London, SE18 — £250,000 • 1 bed • 1 bath • 490 ft²






































































