G13 3AT - 2 bedroom end of terrace house for sale in 91 Killoch Drive…

View on Property Piper

2 bedroom end of terrace house for sale in 91 Killoch Drive, Knightswood, Glasgow, G13 3AT, G13

Summary - 91, KILLOCH DRIVE, GLASGOW G13 3AT

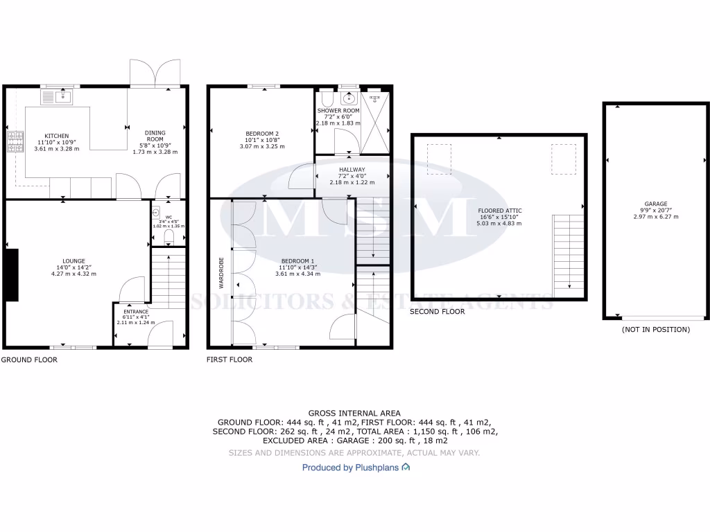
2 bed 2 bath End of Terrace

**Standout Features:**
- Fully renovated, modern end-terrace villa
- Spacious 2 double bedrooms, both bright and tastefully decorated
- Stylish open-plan kitchen with high-quality finishes and integrated appliances
- Modern shower room with underfloor heating
- Private driveway and detached garage for off-street parking
- Enclosed south-facing garden, perfect for children and entertaining
- Chain-free and freehold tenure

**Concerns:**
- Located in a socio-economically challenged area
- Potential damp issues noted in the exterior (mid-20th century design)

Discover an outstanding opportunity with this newly renovated end-terrace villa in the sought-after Knightswood area of Glasgow. This spacious and stylish home features two generous double bedrooms, a modern shower room with luxurious finishes, and a stunning open-plan kitchen ideal for family life and entertaining. The bright and inviting living areas, coupled with chic herringbone flooring, create a warm and welcoming atmosphere.

Enjoy the convenience of off-street parking with a private driveway and detached garage, plus a fully enclosed, south-facing garden that offers ample potential for outdoor enjoyment. While the property is in a socio-economically challenged area, it boasts excellent transport links, local amenities, and reputable schools, appealing to families and professionals alike.

Don't miss out on this exceptional turn-key property—early viewing is highly recommended to truly appreciate its modern charm and comfort. With current market trends, opportunities like this in a family-friendly neighborhood may not last long!

Property Details

Brochure Descriptions

Image Descriptions

Rooms

Textual Property Features

Detected Visual Features

Nearest Bars And Restaurants

,,,,}

Nearest General Shops

,,}

Nearest Grocery shops

,,}

Nearest Supermarkets

,,}

Nearest Religious buildings

,,}

Nearest Medical buildings

,,,}

Nearest Airports

,}

Nearest Leisure Facilities

,,,,}

Nearest Tourist attractions

,,}

Nearest Train stations

,,,,}

Nearest Bus stations and stops

,,,,}

Nearest Hotels

,,}

Tags

Local Market Stats

AirBnB Data

Similar Properties

Meta

High Res Images

Compatible Images

Low res Images

Thumbnails

Raw Images

High Res Floorplan Images

Compatible Floorplan Images

Low res Floorplan Images

FloorplanImages Thumbnail

Raw Floorplan Images