Affordable entry property with practical living spaces and strong transport links.
No onward chain; long lease (approx. 890 years)
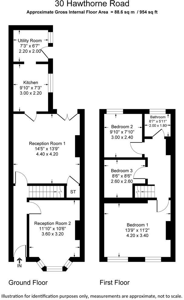
A straightforward three-bedroom mid-terrace with long lease and no onward chain, suited to first-time buyers or investors seeking an affordable entry into Burnley. The house offers two decent reception rooms, a modern-feeling kitchen with a separate utility, and a bright family bathroom — practical spaces that work immediately for everyday living.
The property sits close to well-regarded primary schools, parks and strong transport links including Burnley Manchester Road station and regular bus routes, making commuting and family logistics easy. Broadband and mobile signal are strong locally, which supports home working or rental demand.
Buyers should note local challenges: the area records higher crime rates and is classed as very deprived, which can affect resale and rental values. The property is leasehold (around 890 years remaining) and shows period external features that appear unmaintained; the cavity walls are assumed to have no insulation, and the EPC information suggests scope for energy-efficiency upgrades (insulation, heating tweaks).
Externally there’s no front garden and only a low-maintenance rear yard, and on-street parking is likely. Overall this is a budget-friendly, chain-free terraced house with immediate usability and clear potential for value improvement through modest refurbishment and energy upgrades.
3 bedroom terraced house for sale in Lyndhurst Road, Burnley, Lancashire, BB10 — £89,950 • 3 bed • 2 bath
3 bedroom terraced house for sale in Palace Street, Burnley, BB12 — £85,000 • 3 bed • 1 bath • 940 ft²
2 bedroom terraced house for sale in Holmsley Street, Burnley, BB10 — £85,000 • 2 bed • 2 bath • 528 ft²
3 bedroom terraced house for sale in Accrington Road, Burnley, BB11 — £150,000 • 3 bed • 1 bath • 1098 ft²
3 bedroom terraced house for sale in Aylesbury Walk, Burnley, BB10 — £95,000 • 3 bed • 1 bath • 980 ft²
3 bedroom terraced house for sale in Culshaw Street, Burnley, BB10 — £124,995 • 3 bed • 1 bath • 958 ft²






















































