Bright family home with garden and loft potential.
Three bedrooms, two doubles and one single
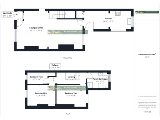
Set on Belgrave Road, this period end-terrace combines classic proportions with practical family spaces. High ceilings and large windows create a bright, airy lounge and dining area that flows into a modern fitted kitchen. Two double bedrooms plus a single give flexible sleeping and study options for a growing household.
The house is freehold and well presented with a four-piece family bathroom and UPVC double glazing. A good-sized rear garden offers safe outdoor space for children and potential to add off-street parking at the rear, subject to access and any neighbouring rights.
There is clear potential to increase living space: loft conversion may be possible with planning consent. The property has original period features alongside contemporary finishes, making it suitable to move into now while offering scope for further improvement and value-add projects.
Important practical points: the terrace sits in a deprived area of blue-collar terraces which may influence longer‑term demand. A small parcel of land at the rear belongs to the property but provides a right of way for neighbours, which could limit parking plans. Cavity walls were built without insulation (assumed) so additional insulation works may be advisable.
3 bedroom terraced house for sale in Talgarth Road, Manchester, M40 — £289,000 • 3 bed • 1 bath • 870 ft²
3 bedroom terraced house for sale in Nuthurst Road, New Moston, Manchester, M40 — £250,000 • 3 bed • 1 bath • 1012 ft²
3 bedroom terraced house for sale in Hale Lane, Failsworth, Manchester, Greater Manchester, M35 — £245,000 • 3 bed • 1 bath • 1151 ft²
3 bedroom terraced house for sale in Roman Road, Failsworth, Manchester, M35 — £280,000 • 3 bed • 2 bath • 1101 ft²
3 bedroom semi-detached house for sale in Carnoustie Close, Manchester, M40 — £269,950 • 3 bed • 1 bath • 704 ft²
3 bedroom terraced house for sale in Droylsden Road, Manchester, M40 — £240,000 • 3 bed • 1 bath • 1107 ft²


































































































































