BD22 7HT - 3 bedroom terraced house for sale in Victoria Road, Oakwort…

View on Property Piper

3 bedroom terraced house for sale in Victoria Road, Oakworth, BD22

Summary - 13 VICTORIA ROAD OAKWORTH KEIGHLEY BD22 7HT

3 bed 2 bath Terraced

**Standout Features:**
- Fully renovated to a high standard
- Three spacious double bedrooms
- Inviting lounge with log burner
- Lower ground floor entertainment space with bar
- Enclosed rear garden with stunning valley views
- Excellent location near local schools and amenities
- Fast broadband and mobile signal

**Summary:**
Discover this beautifully renovated three-bedroom terraced house on Victoria Road, Oakworth, offering a blend of modern living and traditional charm. Perfect for families and first-time buyers, this home boasts three generous double bedrooms, a cozy lounge enhanced by a log burner, and an inviting dining kitchen. The lower ground floor provides a unique entertainment space complete with a bar, great for hosting friends and family.

Step outside to your private enclosed rear garden, featuring breathtaking views across the valley—ideal for tranquil evenings or weekend barbecues. This property is conveniently located just a stone's throw from local schools, shops, and community amenities. With an attractive price of £185,000, this delightful home, recently refurbished and in excellent condition, is sure to attract interest quickly. Act fast to secure your dream dwelling in the picturesque Oakworth community!

Property Details

Brochure Descriptions

Image Descriptions

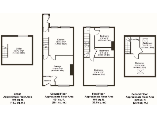
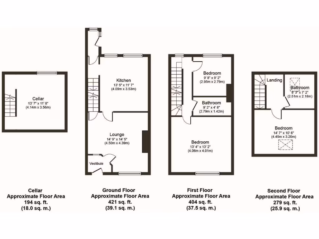
Floorplan Description

Rooms

Textual Property Features

Detected Visual Features

Nearby Schools

Nearest Bars And Restaurants

,,,,}

Nearest General Shops

,,}

Nearest Grocery shops

,,}

Nearest Supermarkets

,,}

Nearest Religious buildings

,,}

Nearest Medical buildings

,,,}

Nearest Airports

}

Nearest Leisure Facilities

,,,,}

Nearest Tourist attractions

,,}

Nearest Train stations

,,,,}

Nearest Bus stations and stops

,,,,}

Nearest Hotels

,,}

Tags

Local Market Stats

AirBnB Data

Similar Properties

Meta

High Res Images

Compatible Images

Low res Images

Thumbnails

Raw Images

High Res Floorplan Images

Compatible Floorplan Images

Low res Floorplan Images

FloorplanImages Thumbnail

Raw Floorplan Images