**Standout Features:**
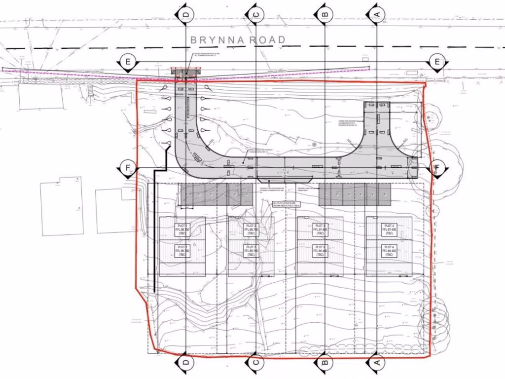
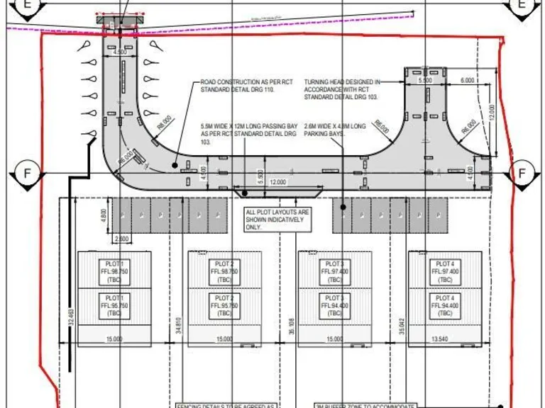
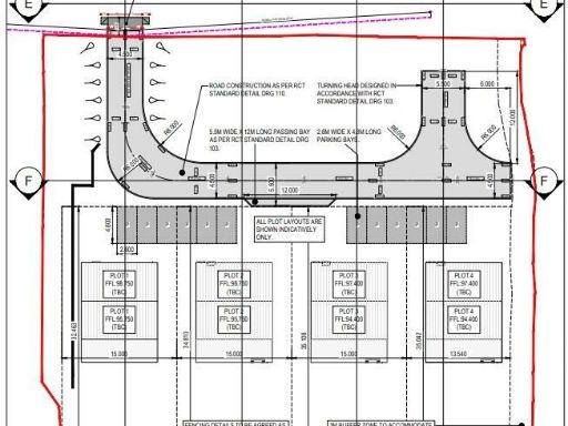
- Outline planning permission for **four detached homes** (1,800 sq. ft each)
- Located in a **prominent village** setting close to major transport links
- Scenic views and a **private cul-de-sac** layout
- Excellent access to M4 motorway, connectivity to **Bridgend, Cardiff, and Swansea**
**Potential Concerns:**
- Some requirement for road construction to create new access
- Subject to all rights and easements related to utilities and drainage
This expansive development site on Brynna Road offers a fantastic opportunity for investors and builders seeking to create a unique residential project in the charming village of Brynna. With outline planning permission granted (Application Number 20/1393/13), prospective buyers can realize their vision of constructing **four spacious, four-bedroom detached homes**, each totaling **1,800 sq. ft**. Nestled against a scenic backdrop of rolling hills and lush greenery, the elevated plot promises beautiful views while ensuring privacy and a tranquil atmosphere.
The location is ideal, just **2.8 miles from Junction 35 of the M4 motorway**, connecting residents easily to some of South Wales’ largest urban centers. The neighborhood offers a blend of suburban appeal and convenient access to local amenities, including leisure facilities and schools.
However, please be aware that new owners will need to consider constructing the access road as part of the development. Additionally, the plot comes with various rights, easements, and covenants that require careful review.
Don’t miss out on this exclusive opportunity to invest in a setting ripe for development—each plot has the potential to become a sought-after family home in a desirable area.
Land for sale in The New House, Abercynon Road, Abercynon, Mountain Ash, CF45 — £345,000 • 4 bed • 3 bath
Land for sale in Ravensbrook, Morganstown, Cardiff, CF15 — £500,000 • 1 bed • 1 bath • 1750 ft²
Property for sale in Land Adjacent to Garth Wen, Trealaw, Tonypandy, Rhondda Cynon Taff, CF40 — £120,000 • 1 bed • 1 bath
Land for sale in Land Off Mill Road, Tongwynlais, Cardiff, CF15 — £375,000 • 1 bed • 1 bath • 2300 ft²
Residential development for sale in Residential Development Land Off Mill Road, Tongwynlais, CF15 — £375,000 • 1 bed • 1 bath • 2300 ft²
Plot for sale in Caer Wenallt, Rhiwbina, Cardiff, CF14 — £195,000 • 1 bed • 1 bath • 5699 ft²


































