**Standout Features:**
- Chain-free sale
- Located minutes from St. Helens Beach and local amenities
- Two reception rooms and two bedrooms, with sea glimpses from the single bedroom
- Double glazing and gas central heating for comfort
- Enclosed rear garden perfect for outdoor relaxation
- Affordable council tax and fast broadband speeds
**Potential Concerns:**
- Small property size (614 sq ft), may feel compact for larger families
- Mid-terrace with older construction; may require some updating
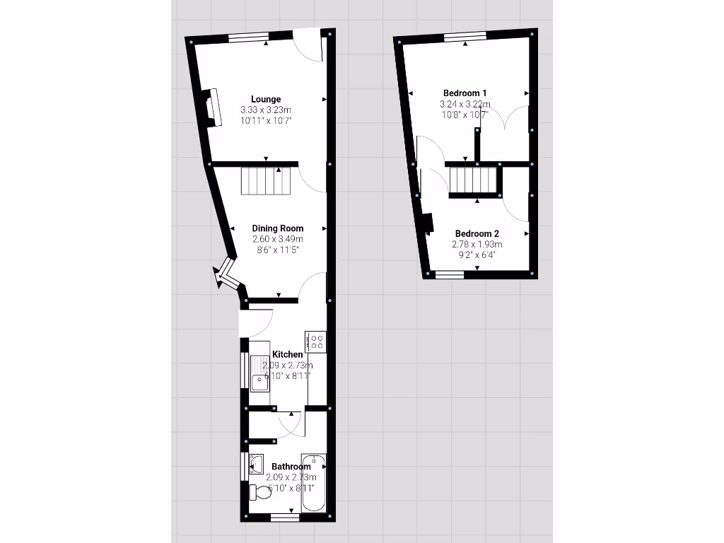
Discover the charm of this delightful mid-terrace cottage just a stone's throw from St. Helens Beach. Ideal for first-time buyers or investors, this cozy home features two inviting reception rooms, a modern kitchen, and a family bathroom, all basking in natural light. Enjoy sea glimpses from the single bedroom and unwind in your beautifully secluded rear garden. The property benefits from double glazing and gas central heating, ensuring comfort year-round.
Perfectly positioned in a comfortable neighborhood, you'll find nearby amenities, eateries, and the picturesque village green all within an easy flat walk. With a small, manageable size and impressive rental potential, this home is ripe for personalization and updates to truly make it your own. Don’t miss your chance to own this quaint cottage—it won’t last long in today’s market!
2 bedroom terraced house for sale in Lower Green Road, St Helens, Isle of Wight, PO33 1TS, PO33 — £290,000 • 2 bed • 1 bath • 458 ft²
2 bedroom terraced house for sale in Upper Green Road, St Helens, Isle of Wight, PO33 1XF, PO33 — £250,000 • 2 bed • 1 bath • 510 ft²
2 bedroom semi-detached house for sale in Upper Green Road, St. Helens, PO33 1UG, PO33 — £225,000 • 2 bed • 2 bath • 711 ft²
2 bedroom end of terrace house for sale in Upper Green Road, St Helens, Isle of Wight, PO33 1UQ, PO33 — £385,000 • 2 bed • 2 bath • 677 ft²
3 bedroom detached house for sale in Newlands, St Helens, Isle of Wight, PO33 1TY, PO33 — £415,000 • 3 bed • 2 bath • 1195 ft²
2 bedroom end of terrace house for sale in St. Catherine Street, Ventnor, Isle of Wight, PO38 — £199,950 • 2 bed • 1 bath • 904 ft²










































