**Standout Features:**
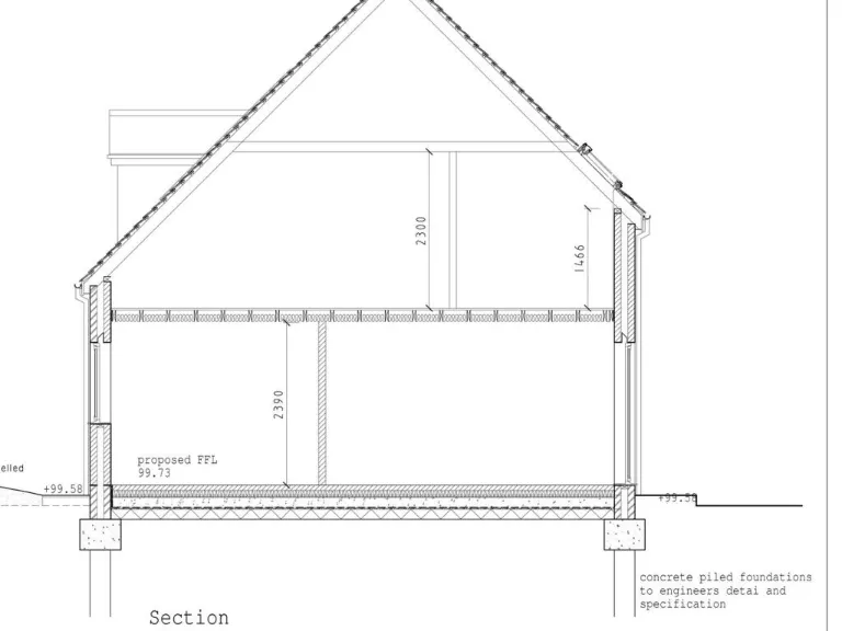
- Rare building plot with full planning permission for a 3-bedroom detached house (ref: WND/2021/0923).
- Located in a quiet cul-de-sac in the popular village of Barby.
- Proposed layout includes a hall, lounge, kitchen/breakfast room, dining/study room, utility, and WC on the ground floor; master bedroom with en-suite and two additional double bedrooms upstairs.
- Off-road parking for two vehicles and an enclosed rear garden provide added convenience and privacy.
- Proximity to excellent schools, including Lawrence Sheriff School and Barby Church of England Primary School.
Nestled in the tranquil village of Barby, this exceptional building plot offers you the unique opportunity to design and construct your dream home. With planning permission already secured for a spacious 3-bedroom detached house, envision an inviting layout with a bright kitchen/breakfast area and versatile living spaces, perfect for family gatherings or a quiet study. The generous garden space, currently overgrown but brimming with potential, allows for personal landscaping touches to create your private oasis.
While the plot is chain-free, it does require gardening and landscaping to fully realize its potential. This peaceful cul-de-sac setting ensures a serene lifestyle, complemented by low crime rates and a sense of community, making it a perfect choice for families or those looking to downsize. Don’t miss out on this fantastic opportunity to invest in a desirable location. Act quickly to secure this plot and bring your vision to life!
3 bedroom semi-detached house for sale in Pittoms Lane, Barby, CV23 8TX, CV23 — £330,000 • 3 bed • 1 bath • 1077 ft²
Land for sale in Baileys Lane, Long Lawford, Rugby, CV23 — £100,000 • 1 bed • 1 bath
3 bedroom detached house for sale in Kilsby Road, BARBY, Warwickshire, CV23 — £495,000 • 3 bed • 3 bath
2 bedroom semi-detached house for sale in Daventry Road, BARBY, Northamptonshire, CV23 — £315,000 • 2 bed • 2 bath • 1202 ft²
3 bedroom semi-detached house for sale in Castle Mound, Barby, Rugby, CV23 — £280,000 • 3 bed • 1 bath • 851 ft²
3 bedroom semi-detached house for sale in Ware Road, Barby, RUGBY, CV23 — £340,000 • 3 bed • 2 bath • 1066 ft²


















































