**Key Features:**
- Freehold mixed-use investment property in Ipswich's central area
- Annual rental income of £71,665 (8.5% blended gross yield)
- Fully let commercial premises and 10 residential flats (3 included in sale)
- Multi-level construction with lift access to all floors
- Potential for upward development, subject to planning approval
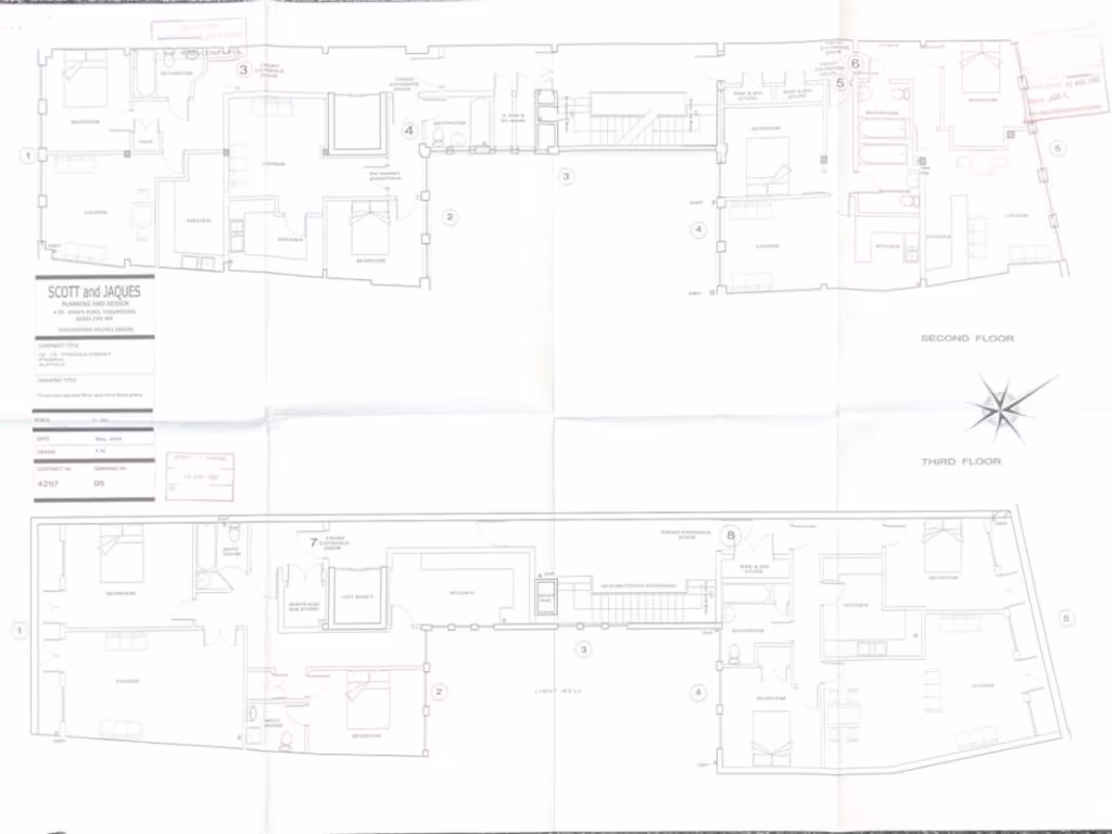
This substantial freehold mixed-use property on Princes Street represents an exceptional investment opportunity in the heart of Ipswich. With a blended gross yield of 8.5% and a robust annual rental income of £71,665, it offers both immediate cash flow and excellent potential for future appreciation. The property features a ground and lower ground floor occupied by well-established commercial tenants—a gaming lounge and a Jiu-Jitsu studio—while the upper levels host an array of residential flats, three of which are included in the sale.
Designed over five floors and accessible via a central lift, the structure boasts a professional steel frame and modern comforts. Each flat offers inviting living spaces, making it attractive for residential leasing, especially near vibrant local amenities. However, it's important to note that the property resides in an area with very high crime rates and displays signs of economic deprivation, which potential investors should consider carefully. With planning potential for future upward developments, this property is poised for both steady income and future advancements. Don’t miss your chance to explore this promising investment—opportunities like this are rarely on the market for long!
Commercial property for sale in Princes Street & Elm Street, Ipswich, Suffolk, IP1 — £895,000 • 4 bed • 4 bath • 4293 ft²
Office for sale in Princes Street, Ipswich, Suffolk, IP1 — £2,600,000 • 1 bed • 1 bath • 13813 ft²
1 bedroom flat for sale in Princess Street, Ipswich, IP1 — £75,000 • 1 bed • 1 bath • 485 ft²
Commercial property for sale in 9-13 Crouch Street & 2 & 2c Church Walk, Colchester, Essex, CO3 3EN, CO3 — £500,000 • 1 bed • 1 bath • 485 ft²
Commercial property for sale in Tacket Street, Ipswich, IP4 — £465,000 • 3 bed • 2 bath • 1165 ft²
2 bedroom house for sale in Princes Street, Ipswich, IP1 — £850,000 • 2 bed • 2 bath • 625 ft²






































































