BD12 0ER - 3 bedroom terraced house for sale in Cemetery Road, Low Moo…

View on Property Piper

3 bedroom terraced house for sale in Cemetery Road, Low Moor, Bradford, BD12

Summary - 5 Cemetery Road, Low Moor BD12 0ER

3 bed 1 bath Terraced

**Standout Features:**
- Charming period-style inner terrace home
- Three spacious bedrooms, ideal for families
- Large dining kitchen with country feel
- Cozy lounge with wood-burning stove
- Pleasant gardens in front and a paved area for off-street parking
- Close proximity to Harold Park for outdoor activities
- Convenient access to local amenities and commuter routes
- Chain-free sale

**Potential Concerns:**
- High crime rate in the area
- Property constructed before 1900, with assumed no insulation in walls

This beautifully presented period-style inner terraced house, nestled in the highly sought-after Low Moor area near Harold Park, offers a unique blend of traditional charm and contemporary comfort. With three generously sized bedrooms, a spacious dining kitchen, and a cozy lounge featuring a wood-burning stove, the home is perfect for families seeking both space and style. The property boasts lovely gardens at the front and a low-maintenance paved area at the rear, which includes vehicle access for convenient off-road parking.

Although the overall ambiance is inviting, potential buyers should consider its historical construction dating back to before 1900, which may involve some maintenance and energy efficiency concerns. Located conveniently for local amenities and transport links, this home is a fantastic opportunity for those looking to invest in a family-friendly neighborhood. With its appealing features and prime location, viewings are strongly advised—don’t miss out on making this your new home!

Property Details

Brochure Descriptions

Image Descriptions

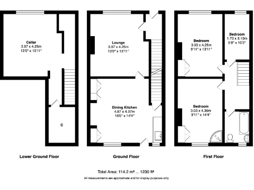
Floorplan Description

Rooms

Textual Property Features

Detected Visual Features

EPC Details

Nearby Schools

Nearest Bars And Restaurants

,,,,}

Nearest General Shops

,,}

Nearest Grocery shops

,,}

Nearest Supermarkets

,,}

Nearest Religious buildings

,,}

Nearest Medical buildings

,,,}

Nearest Airports

}

Nearest Leisure Facilities

,,,,}

Nearest Tourist attractions

,,}

Nearest Train stations

,,,,}

Nearest Bus stations and stops

,,,,}

Nearest Hotels

,,}

Tags

Local Market Stats

Similar Properties

Meta

High Res Images

Compatible Images

Low res Images

Thumbnails

Raw Images

High Res Floorplan Images

Compatible Floorplan Images

Low res Floorplan Images

FloorplanImages Thumbnail

Raw Floorplan Images