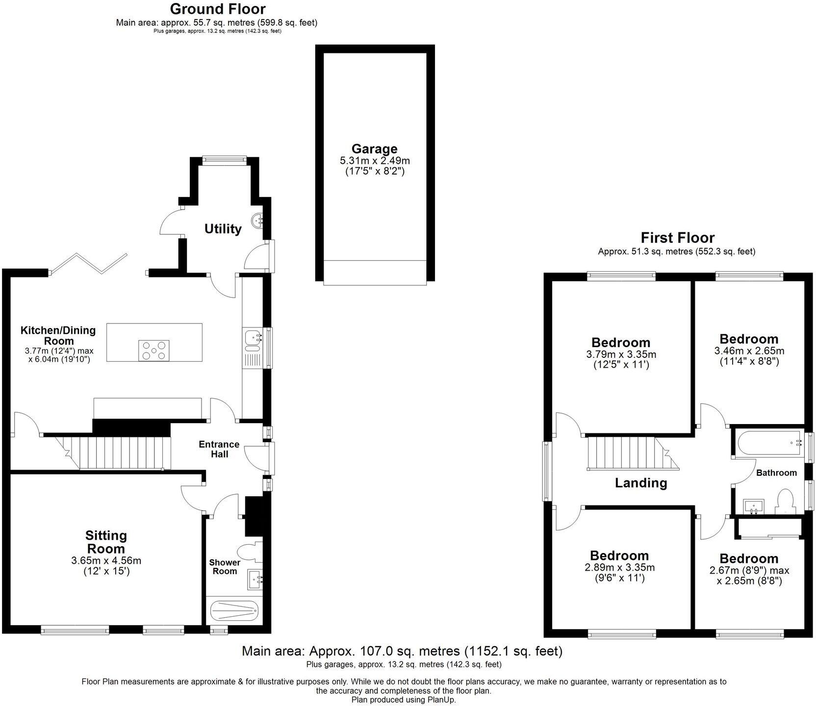
**Standout Features:**
- Stylish 4-bedroom detached family home
- Recently refurbished kitchen and bathrooms
- Utility room & convenient downstairs shower room
- Delightful south-facing garden with spacious patio
- Garage and driveway for multiple vehicles
- No onward chain for faster transactions
Nestled in the charming village of Ickleford, this contemporary 4-bedroom family home is ideal for those seeking a blend of comfort and convenience. With high-quality finishes and a stylishly refurbished kitchen equipped with integrated appliances and expansive central island, it’s perfect for both cooking and entertaining. The inviting living room, flooded with natural light from large windows, offers a warm gathering space, while the adjacent utility room adds practicality for busy families. The south-facing garden is an outdoor oasis, perfect for summer barbecues or children's playtime, surrounded by mature trees for added privacy.
Located within walking distance of reputable schools and essential village amenities, plus a mere 2 miles from Hitchin train station for swift access to Central London, this home balances serene village life with urban connectivity. The property is move-in ready, making it appealing for families or first-time buyers looking for an immediate lifestyle upgrade. Though set in an affluent area, potential buyers should note that local crime rates are above average. This affordable gem in a sought-after location is chain-free and won't stay on the market for long—schedule your visit today and secure your family's new home!
3 bedroom detached house for sale in Ickleford Mews, Ickleford, SG5 — £650,000 • 3 bed • 2 bath • 1364 ft²
4 bedroom detached house for sale in Arlesey Road, Ickleford, Hitchin, SG5 — £615,000 • 4 bed • 1 bath • 1206 ft²
3 bedroom detached house for sale in Cedar Avenue, Ickleford, SG5 3XU, SG5 — £725,000 • 3 bed • 1 bath • 1376 ft²
6 bedroom detached house for sale in Arlesey Road, Ickleford, Hitchin, SG5 — £1,100,000 • 6 bed • 3 bath • 2593 ft²
5 bedroom detached house for sale in Walnut Way, Ickleford, SG5 3XT, SG5 — £875,000 • 5 bed • 3 bath • 2036 ft²
3 bedroom semi-detached house for sale in Walnut Way, Ickleford, SG5 — £500,000 • 3 bed • 1 bath • 1112 ft²


































































