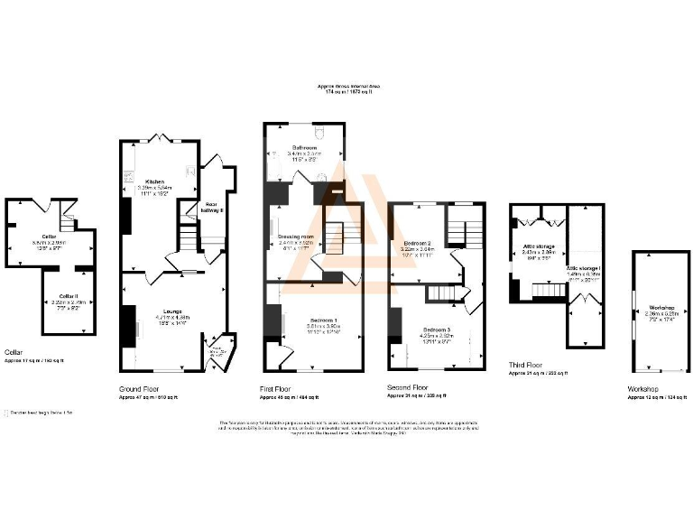
Character-filled four-bedroom terraced home with large garden and terrace in central Barnard Castle..
- Grade II-listed Georgian terraced house with abundant original features
- Spacious south-facing kitchen/dining room opening onto high terrace
- Large private garden, stone outbuilding and off-street driveway parking
- Four bedrooms across two upper floors; master with vaulted ceiling
- Single bathroom only; renovation and modernisation required
- Listed status imposes repair/alteration constraints and potential costs
- Large cellar accessible from garden; good potential for conversion
- High local crime rate noted; town centre location
A substantial Grade II-listed Georgian terraced home in the heart of Barnard Castle, rich in original features and panoramic moorland views. The house offers four generous bedrooms across three storeys, a large open-plan living/kitchen area with south-facing double doors to a high terrace, and a deep garden with private driveway and useful stone outbuilding. Its location is exceptional — 300 metres from the Market Cross, close to top-rated primary and secondary schools, local shops, cultural attractions and community clubs.
This property requires renovation and sympathetic repair due to its listed status; any work will need consent and specialist care. There is only one bathroom and some areas are dated, so modernisation is needed to realise full family potential. The house does benefit from large cellars, flexible room layouts and a sizable plot that permits parking within the rear garden — a rare asset in the town centre.
For families seeking character, space and proximity to strong schools, this home represents long-term potential. For buyers wanting a turnkey property, the renovation requirements and listed-building constraints are material considerations. Viewing is recommended to appreciate the scale, original features and exceptional south-facing terrace with far-reaching countryside views.
3 bedroom terraced house for sale in 35 Newgate, Barnard Castle, DL12 — £300,000 • 3 bed • 2 bath • 1389 ft²
2 bedroom terraced house for sale in Newgate, Barnard Castle, DL12 — £200,000 • 2 bed • 1 bath • 959 ft²
3 bedroom flat for sale in 6a Market Place, Barnard Castle, DL12 — £119,950 • 3 bed • 1 bath • 891 ft²
4 bedroom barn conversion for sale in 17c King Street, Barnard Castle, DL12 — £355,000 • 4 bed • 2 bath • 1399 ft²
1 bedroom terraced house for sale in The Weavers, 25 Low Starforth Road, Barnard Castle, DL12 — £135,000 • 1 bed • 1 bath • 786 ft²
3 bedroom terraced house for sale in Thorngate, Barnard Castle, Co Durham, DL12 — £220,000 • 3 bed • 1 bath • 992 ft²






















































