Affordable two-bed end-terrace with parking, garden and low running costs..
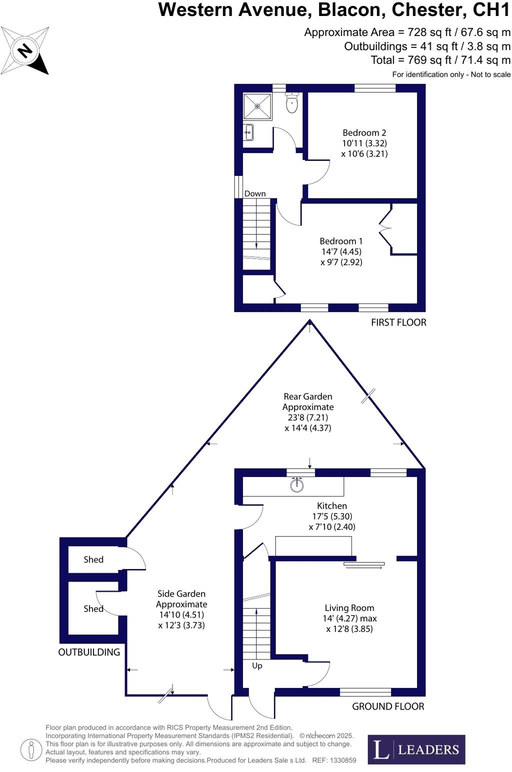
Two bedrooms within an average 728 sq ft layout
Private off-street driveway and small rear garden
Double glazing fitted post-2002; gas central heating
Freehold tenure; post-war 1950s–1960s construction
Council tax very cheap, low ongoing local costs
No flood risk recorded for the property
Area is very deprived with above-average crime levels
Small plot and traditional layout — limited expansion potential
This two-bedroom end-of-terrace in Blacon offers an affordable entry into Chester’s housing market. At around 728 sq ft the layout is traditional and practical, with a living room, dining kitchen and a shower room arranged over two storeys. The house is ready to occupy with double glazing and gas central heating via a boiler and radiators.
Outside there’s a small, low-maintenance garden and private off-street parking — useful extras in this area. Local schools include several rated Good, and the property has no flood risk. Council tax is very cheap, which helps keep ongoing costs low for a first-time buyer or budget-conscious household.
Buyers should note the wider area scores high for deprivation and has above-average crime levels; the neighbourhood is described as challenged and hard-pressed. The plot is small and the house is a post-war 1950s–1960s build, so buyers seeking period features or large gardens may be disappointed.
Overall this is a sensible, modestly sized freehold home that suits first-time buyers or investors wanting a straightforward, low-running-cost property in Blacon. It presents good basic accommodation with scope to modernise internally if wished.
3 bedroom terraced house for sale in Carlisle Road, Blacon, CH1 — £190,000 • 3 bed • 1 bath • 893 ft²
3 bedroom terraced house for sale in Blacon Avenue, CHESTER, Cheshire, CH1 — £160,000 • 3 bed • 1 bath • 988 ft²
2 bedroom end of terrace house for sale in Browning Close, Blacon, Chester, CH1 — £155,000 • 2 bed • 1 bath • 524 ft²
2 bedroom end of terrace house for sale in Browning Close, Blacon, CH1 — £145,000 • 2 bed • 1 bath • 508 ft²
2 bedroom terraced house for sale in Blacon Avenue, Blacon, Chester, CH1 — £180,000 • 2 bed • 1 bath • 1036 ft²
3 bedroom end of terrace house for sale in Shelley Road, CHESTER, Cheshire, CH1 — £190,000 • 3 bed • 1 bath • 902 ft²


































































