BR1 5RQ - 3 bed spacious family home in Lewisham East, BR1 5RQ

View on Property Piper

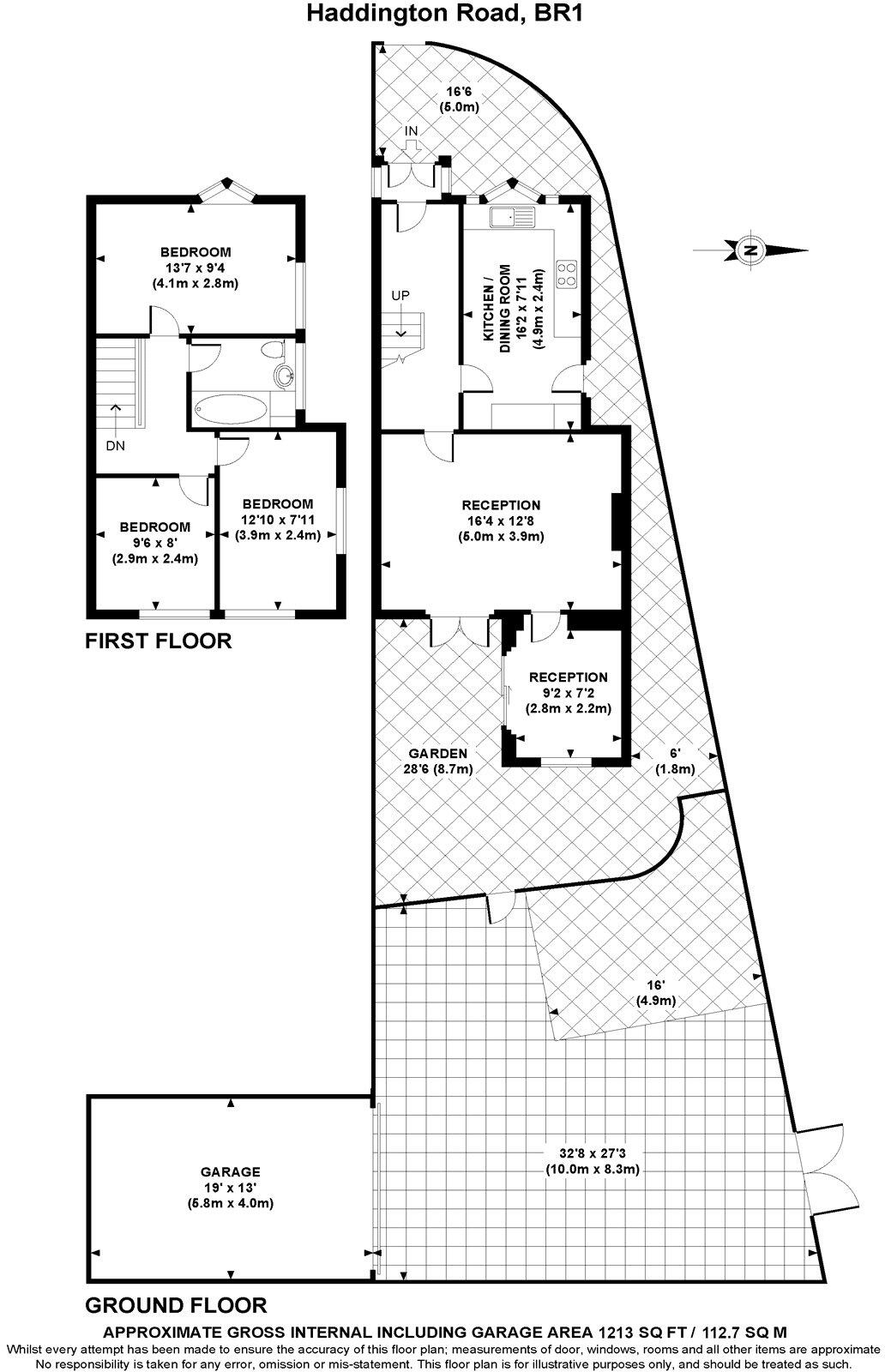
3 bedroom end of terrace house for sale in Haddington Road, Bromley, BR1

Summary - Haddington Road, BR1 BR1 5RQ

3 bed 1 bath End of Terrace

Three bedrooms, large garage and low-maintenance gardens ideal for family living.
No onward chain — available for a quicker sale process
This end-of-terrace house on Haddington Road offers roomy, practical living for a growing family. The layout includes two bright reception rooms and a modern kitchen/dining area, giving flexible space for daily life and home working. A paved patio and low-maintenance front and rear gardens suit busy households who want outdoor space without heavy upkeep.

The property benefits from UPVC double glazing, mains gas central heating and an EPC rating of C, keeping running costs reasonable. A large double garage with rear access adds rare, secure parking and storage in this location. The house is offered with no onward chain, so completion can be straightforward for a buyer who wants to move quickly.

Buyers should note a few material points: there is only one bathroom serving three bedrooms, and external walls are assumed to be solid brick with no added insulation. Crime levels in the immediate area are above average, so prospective purchasers may want to review local safety measures and consider security improvements. Overall, this is a well-presented, average-sized family home built in 1988, conveniently located for local schools, shops and nearby rail links to Beckenham Hill and Bellingham.

Property Details

Image Descriptions

Floorplan Description

Rooms

Textual Property Features

Target Audience

AI Tags

Detected Visual Features

EPC Details

Nearby Schools

Nearest Bars And Restaurants

,,,,}

Nearest General Shops

,,}

Nearest Grocery shops

,,}

Nearest Supermarkets

,,}

Nearest Religious buildings

,,}

Nearest Medical buildings

,,,}

Nearest Airports

,,}

Nearest Leisure Facilities

,,,,}

Nearest Tourist attractions

,,}

Nearest Train stations

,,,,}

Nearest Bus stations and stops

,,,,}

Nearest Hotels

,,}

Tags

Local Market Stats

AirBnB Data

Similar Properties

Meta

High Res Images

Compatible Images

Low res Images

Thumbnails

Raw Images

High Res Floorplan Images

Compatible Floorplan Images

Low res Floorplan Images

FloorplanImages Thumbnail

Raw Floorplan Images