**Standout Features:**
- Grade II listed Victorian end-terrace property
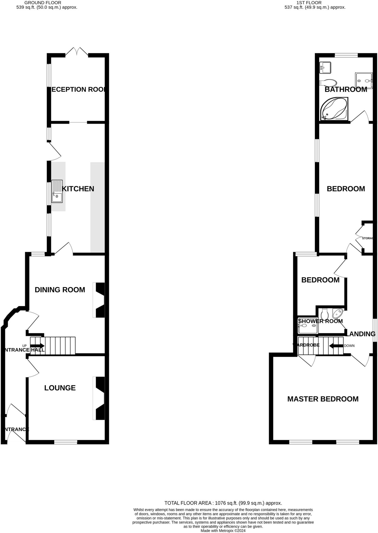
- Three bedrooms and two bathrooms
- Three spacious reception rooms
- Enclosed rear garden
- Freehold status and chain-free sale
- Excellent mobile signal and fast broadband speeds
**Concerns:**
- Requires full refurbishment
- High local crime rate
- Current council tax band unknown
- Additional maintenance due to age and structure
This charming three-bedroom Grade II listed Victorian end-terrace property is perfectly situated just off Chard Town center, within walking distance of essential facilities and amenities. Although it requires full refurbishment, this offers an exceptional opportunity for investors or first-time buyers looking to create a personalized family home in a well-established area.
The residence boasts ample living space with three reception rooms and a fitted kitchen, ideal for gatherings or quiet family moments. Upstairs, you'll find three bedrooms accompanied by two bathrooms—one a traditional bath, the other a separate shower room. An attractive enclosed garden at the rear adds potential for outdoor relaxation.
With the property being sold chain-free and heating provided by a mains gas boiler, it offers a solid foundation for future renovations. However, potential buyers should remain aware of the high local crime rate and the need for significant upgrades throughout the house, which may pose challenges and require a thoughtful approach to restoration. Embrace this opportunity to reimagine a historic home in Chard, a location that blends traditional character with modern living conveniences. Don't miss out—the market here is competitive!
3 bedroom terraced house for sale in Furnham Road, Chard, Somerset, TA20 — £225,000 • 3 bed • 1 bath • 1109 ft²
2 bedroom end of terrace house for sale in Crimchard, Chard, Somerset, TA20 — £170,000 • 2 bed • 1 bath • 692 ft²
2 bedroom terraced house for sale in Washington Terrace, Crimchard, Chard, Somerset, TA20 — £175,000 • 2 bed • 1 bath • 834 ft²
3 bedroom terraced house for sale in Silver Street, Chard, Somerset, TA20 — £139,950 • 3 bed • 1 bath • 912 ft²
3 bedroom terraced house for sale in Silver Street, Chard, Somerset TA20 , TA20 — £165,000 • 3 bed • 1 bath • 957 ft²
2 bedroom end of terrace house for sale in Old Town, Chard, Somerset, TA20 — £140,000 • 2 bed • 1 bath • 636 ft²


























































