Spacious family house with large garden and strong renovation potential.
Substantial 4-bedroom detached home with three reception rooms
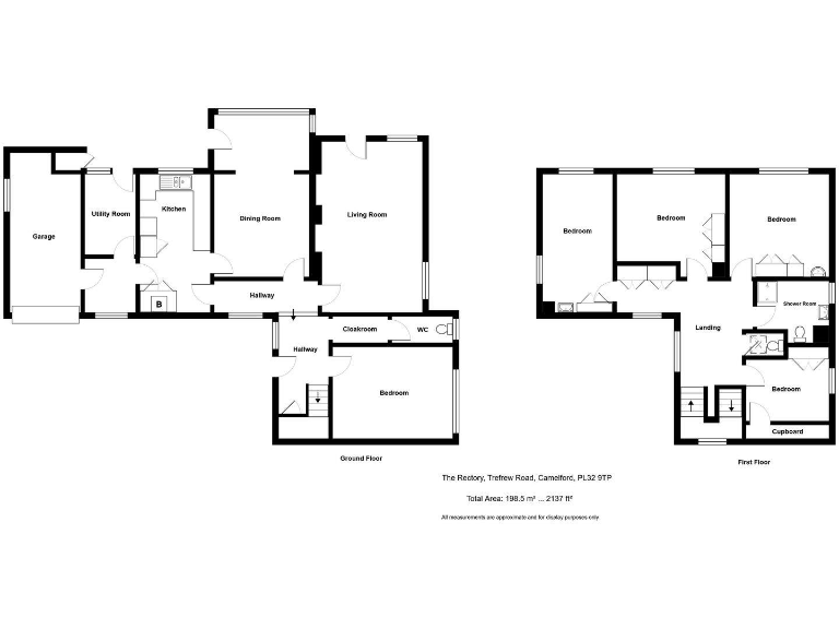
The Rectory is a substantial 4-bedroom detached house set on a generous 0.28-acre plot within easy walking distance of Camelford town centre. The property has three reception rooms, a kitchen with utility room, an integral garage and immediate vacant possession — offering a large family home or opportunity for dual-family occupation.
The house benefits from UPVC double glazing and oil-fired central heating but requires modernisation throughout. Principal living rooms are spacious with a stone fireplace and patio access; bedrooms are a good size with built-in wardrobes. The expansive garden, five-bar gated entrance and driveway create strong scope for extension, landscaping or simply private outdoor space.
Buyers should note several important health-and-safety and renovation issues: the decked balcony has been removed (patio doors lead to a sharp drop), the porch and a pedestrian entrance are currently unstable, and there is no asbestos survey — no disturbance of certain finishes (including parquet floor tiles) should occur until checked. The property is sold freehold, EPC rating D and Council Tax Band E.
The sale is marketed on behalf of the Diocese of Truro and prospective purchasers connected to the Diocese must declare that connection before offering. The Diocese may impose limited covenants to protect the church and neighbouring ministry activities. Overall, this home offers a sizeable plot, flexible accommodation and clear scope for improvement for a family or buyer seeking a renovation project in a rural village setting.
4 bedroom detached house for sale in Trefrew Road, Camelford, PL32 — £500,000 • 4 bed • 1 bath • 2137 ft²
6 bedroom detached house for sale in Hillhead Gardens, Camelford, PL32 9TD, PL32 — £485,000 • 6 bed • 2 bath • 2750 ft²
4 bedroom terraced house for sale in Beechwood Drive, CAMELFORD, Cornwall, PL32 — £350,000 • 4 bed • 3 bath • 1400 ft²
4 bedroom detached house for sale in Beechwood Drive, Camelford, PL32 — £399,950 • 4 bed • 2 bath • 1419 ft²
3 bedroom detached bungalow for sale in Warrens Field, Camelford, PL32 — £415,000 • 3 bed • 1 bath • 1115 ft²
3 bedroom bungalow for sale in Sunnyside Meadow, Camelford, Cornwall, PL32 — £325,000 • 3 bed • 1 bath • 1258 ft²


























































