Large plot, double garage and excellent scope to modernise for growing families.
- Detached family house on a larger-than-average plot
- Five bedrooms and two bathrooms including ensuite
- Double garage plus ample off-road parking
- Spacious kitchen/breakfast room and conservatory
- Requires cosmetic updating and general refurbishment
- Freehold, no onward chain, no flood risk
- Council tax band above average
- Excellent mobile and fast broadband, very low crime
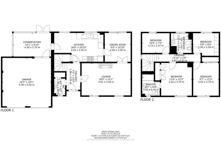
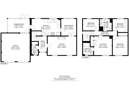
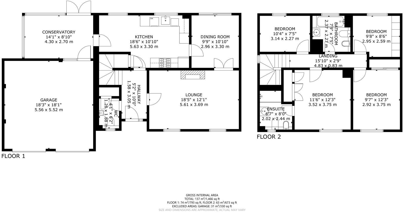
Set on a larger-than-average plot in a quiet Hailsham cul-de-sac, this detached family home offers generous living space and practical parking. The ground floor includes a large lounge, separate dining room, spacious kitchen/breakfast area and a conservatory that opens onto private gardens — ideal for family life and entertaining. A double garage and wide driveway provide substantial storage and parking.
Upstairs there are five bedrooms and two bathrooms, including an ensuite to the principal bedroom. The layout is family-friendly and flexible: reception rooms are well-proportioned and the conservatory adds extra day-to-day living space. Broadband and mobile signal are strong, local crime rates are very low, and there is no flood risk.
The property has been in long-term ownership and now requires cosmetic updating throughout, offering scope to modernise and add value. Notable practical facts: freehold tenure, mains gas central heating, double glazing, and council tax band above average. Sold with no onward chain, this house suits buyers seeking a roomy, private family home they can personalise.
Viewing is recommended to appreciate the plot size and room proportions; purchasers should budget for refurbishment and cosmetic works to bring the interior up to contemporary standards.
5 bedroom detached house for sale in Hedley Way, Hailsham, BN27 — £495,000 • 5 bed • 3 bath • 1597 ft²
4 bedroom detached house for sale in Wentworth Close, Hailsham, BN27 — £450,000 • 4 bed • 2 bath • 1263 ft²
3 bedroom semi-detached house for sale in Goodwin Close, Hailsham, BN27 — £299,000 • 3 bed • 1 bath • 830 ft²
4 bedroom house for sale in Sycamore Drive, Hailsham, BN27 — £375,000 • 4 bed • 1 bath • 1262 ft²
4 bedroom detached house for sale in Greenfields, Hailsham, BN27 — £450,000 • 4 bed • 2 bath • 1081 ft²
3 bedroom detached house for sale in Green Grove, Hailsham, BN27 — £325,000 • 3 bed • 1 bath • 927 ft²






































































































