Large plot, double garage and flexible living for growing families.
Four double bedrooms including en-suite to principal
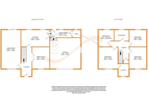
Set on a generous plot in a popular Keighley suburb, this detached four-double-bedroom home suits a growing family who need space and parking. The house offers two reception rooms, a breakfast kitchen, utility and ground-floor WC, plus an en-suite to the principal bedroom. A double garage and wide driveway give abundant secure parking and storage.
The layout is practical and straightforward: a light living room with garden access, separate dining room and usable rear patio garden for children and pets. The property dates from the 1980s and benefits from double glazing and gas central heating via a boiler and radiators.
Buyers should note some material considerations. The EPC is rated D and the council tax is described as expensive; further energy improvements may be beneficial. The surrounding area is classified as very deprived with a recorded higher local crime level, so prospective purchasers should assess local services and safety for their own needs.
For families, the catchment offers several good primary schools and nearby secondary options. The house also has scope for updating and cosmetic improvement to increase comfort and long-term value, especially energy-efficiency upgrades and modernising some finishes.
4 bedroom detached house for sale in Low Fell Close, Keighley, West Yorkshire, BD22 — £310,000 • 4 bed • 3 bath • 1182 ft²
4 bedroom detached house for sale in Buckstone Garth, Keighley, BD20 — £500,000 • 4 bed • 2 bath • 1036 ft²
4 bedroom detached house for sale in Low Fell Close, Keighley, BD22 — £389,950 • 4 bed • 2 bath • 1128 ft²
4 bedroom detached house for sale in Braithwaite Edge Road, Keighley, BD22 — £290,000 • 4 bed • 3 bath • 1206 ft²
4 bedroom detached house for sale in Ashfield Avenue, Shipley, BD9 — £500,000 • 4 bed • 2 bath • 1690 ft²
4 bedroom detached house for sale in Birchdale, Bingley, West Yorkshire, BD16 — £425,000 • 4 bed • 2 bath • 1561 ft²


























































