Ground-floor two-bed with off-street parking, long lease and no chain — ideal first home..
Two double bedrooms with fitted wardrobes
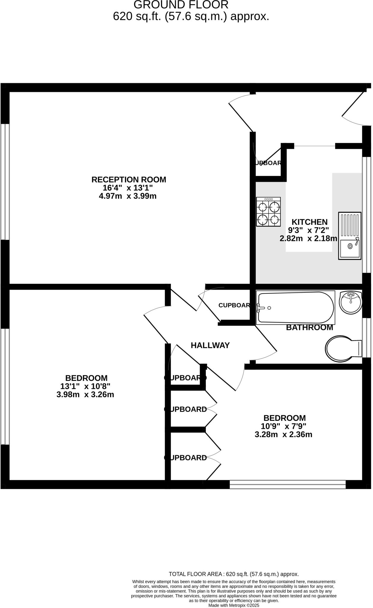
This bright two-bedroom ground-floor apartment on South Norwood Hill offers a practical, move-in-ready layout for first-time buyers or professionals. The 16ft reception room benefits from large windows and neutral décor, creating an airy living space that flows from a compact, modern kitchen. Two double bedrooms include fitted wardrobes to maximise storage.
Practical ownership features include share of freehold with a long 999-year lease, off-street parking and no onward chain — all useful for a straightforward purchase. At about 620 sq ft the home is an average-sized apartment that suits a small household or couple wanting nearby green space and good transport links.
Buyers should note the property’s electric room heaters as the main heating source and that double-glazing install dates are not specified. These factors can affect running costs and may prompt future upgrades. The building dates from the mid-20th century, so some communal or long-term maintenance should be considered when budgeting.
Overall this is a well-presented, conveniently located two-bedroom with clear ownership advantages and easy local access to shops, parks and rail links — a sensible choice for buyers prioritising location and straightforward tenure.
2 bedroom flat for sale in South Norwood Hill, London, SE25 — £265,000 • 2 bed • 1 bath • 665 ft²
2 bedroom apartment for sale in South Norwood Hill, London, SE25 — £275,000 • 2 bed • 1 bath • 670 ft²
2 bedroom apartment for sale in Selhurst Road, London, SE25 — £270,000 • 2 bed • 1 bath • 560 ft²
2 bedroom apartment for sale in Warminster Road, London, SE25 — £280,000 • 2 bed • 1 bath • 483 ft²
2 bedroom apartment for sale in Bungalow Road, London, SE25 — £270,000 • 2 bed • 1 bath • 618 ft²
2 bedroom flat for sale in Southern Avenue, London, SE25 — £425,000 • 2 bed • 1 bath • 675 ft²


























































