TW16 7RZ - 3 bedroom terraced house for sale in SunburyonThames, Surre…

View on Property Piper

3 bedroom terraced house for sale in Sunbury-on-Thames, Surrey, TW16

Summary - 104 KENYNGTON DRIVE SUNBURY-ON-THAMES TW16 7RZ

3 bed 1 bath Terraced

Chain-free three-bed with garden, 0.5 miles from Sunbury station — ideal for renovators.
- 0.5 miles to Sunbury train station, good commuter link
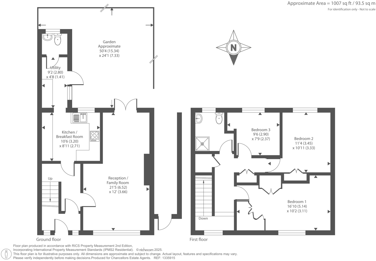
- Three bedrooms, one family bathroom
- Kitchen/breakfast room with separate utility area
- Private rear garden, small plot
- Chain-free freehold sale
- Needs full modernisation throughout
- Area classified as hampered/deprived; resale may be slower
- Gas central heating and double glazing present
A straightforward three-bedroom mid-terrace offering good commuter convenience and clear renovation potential. The house sits 0.5 miles from Sunbury station and provides a kitchen/breakfast room, ground-floor cloakroom and a private rear garden — a practical layout for young families or buy-to-let purchasers prepared to update the interior.

The property is chain-free and freehold, which simplifies purchase; gas central heating, double glazing and a 1,007 sq ft footprint give a solid base. Nearby schools include two ‘Good’ rated primary schools and an ‘Outstanding’ secondary, which will appeal to families. Flooding risk is low and broadband/mobile signals are strong.

Important drawbacks are straightforward: the house needs modernisation throughout and is in an area described as hampered/deprived, which may affect resale timing and tenant demand. The plot is small and there is only one family bathroom. Buyers should budget for refurbishment works and factor local area considerations into their plans.

Overall this is best suited to buyers seeking a project close to transport links — families wanting to create a long-term home, or investors targeting a value-add refurbishment in Sunbury-on-Thames.

Property Details

Image Descriptions

Rooms

Textual Property Features

Target Audience

AI Tags

Detected Visual Features

EPC Details

Nearby Schools

Nearest Bars And Restaurants

,,,,}

Nearest General Shops

,,}

Nearest Grocery shops

,,}

Nearest Supermarkets

,,}

Nearest Religious buildings

,,}

Nearest Medical buildings

,,,}

Nearest Airports

,}

Nearest Leisure Facilities

,,,,}

Nearest Tourist attractions

,,}

Nearest Train stations

,,,,}

Nearest Bus stations and stops

,,,,}

Nearest Hotels

,,}

Tags

Local Market Stats

AirBnB Data

Similar Properties

Meta

High Res Images

Compatible Images

Low res Images

Thumbnails

Raw Images

High Res Floorplan Images

Compatible Floorplan Images

Low res Floorplan Images

FloorplanImages Thumbnail

Raw Floorplan Images