Bright, efficient family home close to moors and coast.
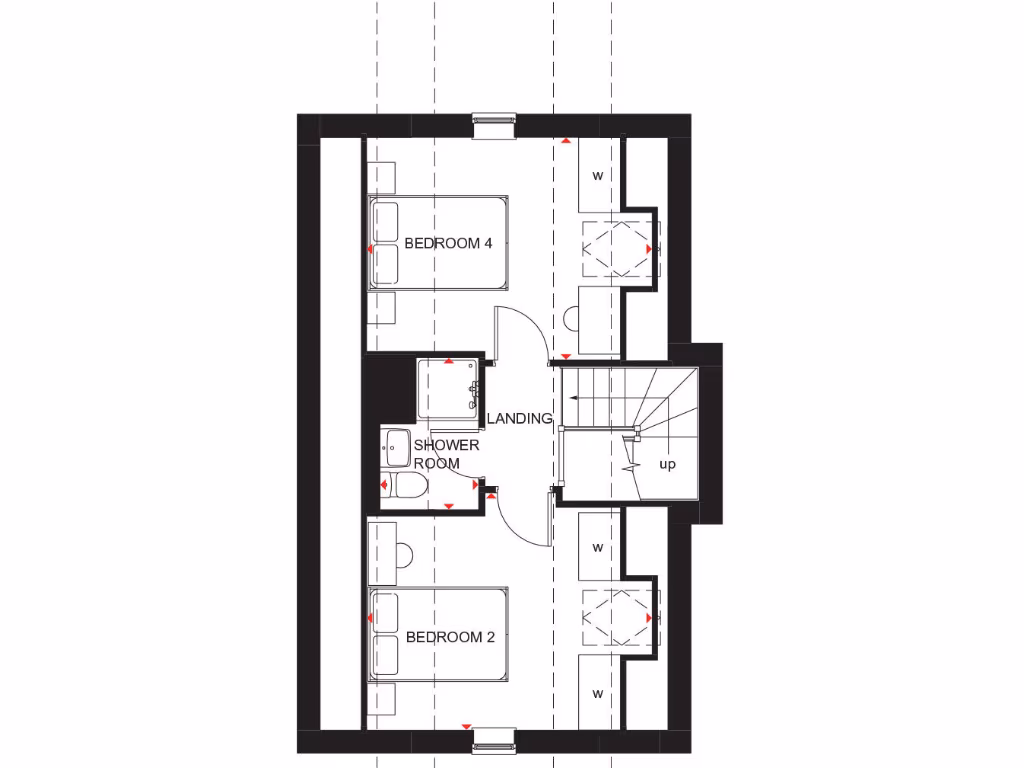
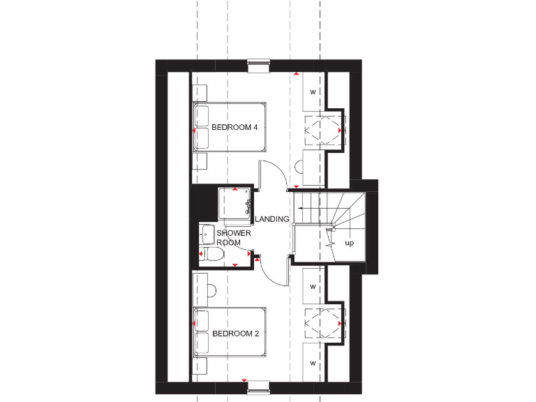
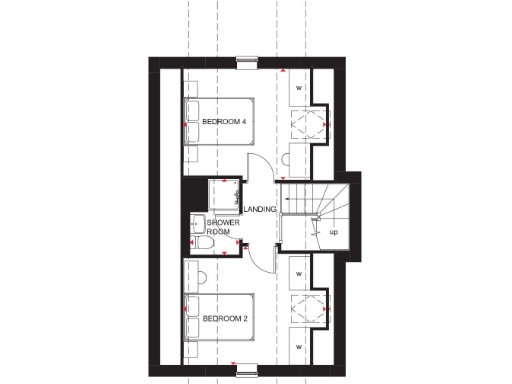
Four double bedrooms including main with en suite
A modern four-double-bedroom detached home positioned on a corner plot within the Abbey View development, a short commute from Whitby and bordering the North York Moors National Park. The ground floor offers a bright open-plan kitchen/dining area with French doors to a modest rear garden, plus a separate lounge for evening relaxation. The main bedroom benefits from an en suite; two further bedrooms and a family bathroom occupy the middle floor, with two top-floor doubles served by a dual-access shower room.
This new-build delivers contemporary, low-maintenance living with an energy-efficient brick facade, integrated kitchen appliances, and modern finishes throughout. The house footprint is compact (about 976 sq ft) and designed for practical family use rather than extensive entertaining or large gardens. Mobile signal and broadband are strong, supporting remote work or streaming without concern.
Notable constraints are the small overall plot and modest rear garden, and the development-style layout meaning neighbouring homes and communal landscaping are close by. Tenure is not specified; buyers should confirm tenure, service charges and any remaining new-build warranties. The property is listed as the last Hesketh plot available on this phase—suitable for buyers seeking turnkey, modern family accommodation near coastal and moorland countryside.
3 bedroom end of terrace house for sale in Abbey View Road,
Whitby,
YO22 4FR, YO22 — £244,995 • 3 bed • 1 bath • 683 ft²
4 bedroom detached house for sale in Abbey View Road,
Whitby,
YO22 4FR, YO22 — £379,995 • 4 bed • 1 bath • 946 ft²
4 bedroom terraced house for sale in Abbey View Road, Whitby, North Yorkshire, YO22 — £270,000 • 4 bed • 2 bath
3 bedroom end of terrace house for sale in Abbey View Road,
Whitby,
YO22 4FR, YO22 — £259,995 • 3 bed • 1 bath • 658 ft²
4 bedroom detached house for sale in Abbey View Road,
Whitby,
YO22 4FR, YO22 — £369,995 • 4 bed • 1 bath • 946 ft²
4 bedroom detached house for sale in Abbey View Road,
Whitby,
YO22 4FR, YO22 — £344,995 • 4 bed • 1 bath • 845 ft²


















































































