Executive family home with sea-view balcony, solar panels and annexe potential.
Over 2,300 sq ft of living space across two storeys
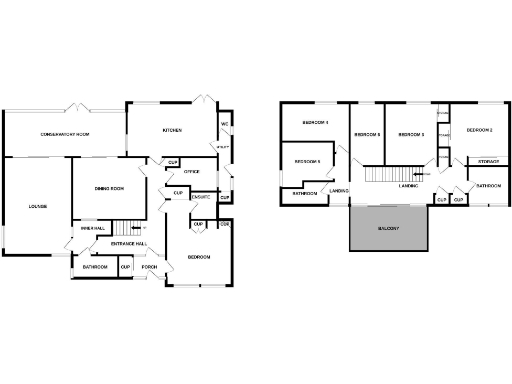
This substantial six-bedroom detached house extends to over 2,300 sq ft and offers flexible family living with annexe potential. Recent upgrades include a luxury kitchen (fitted April 2024), an enclosed first-floor balcony with sea views and 16 owned solar panels with battery storage that reduce running costs. Accommodation includes a large lounge, extensive conservatory, ground-floor bedroom with en-suite and separate access, plus ample utility and office space.
Externally the property sits on a decent plot with a westerly rear garden, pergola, space for a hot tub, summer house and a long in/out driveway with wrought-iron gates providing substantial off-street parking. The location is convenient for Clacton County High School, town centre, leisure centre and the mainline station, and the seafront is within sight — strong positives for families wanting space near local amenities.
Buyers should note material context and running costs: the property lies in an area classified as deprived with above-average crime and council tax is above average (Band E). The EPC rating is currently to be confirmed. Internal inspection is recommended to assess condition and to confirm that all recent works have the required permissions and certifications.
Overall this is a roomy, well-updated mid-century modern detached home suited to larger families or buyers seeking annexe/letting potential close to the seafront. The solar array and battery are valuable energy features, while the neighbourhood characteristics and council tax level are important practical considerations.
4 bedroom detached house for sale in St. Albans Road, CLACTON-ON-SEA, Essex, CO15 — £675,000 • 4 bed • 3 bath • 1993 ft²
6 bedroom detached house for sale in Albany Gardens West, Clacton-On-Sea, CO15 — £575,000 • 6 bed • 3 bath • 2410 ft²
3 bedroom detached house for sale in Norwood Avenue, Clacton on Sea, CO15 — £395,000 • 3 bed • 2 bath • 1244 ft²
4 bedroom chalet for sale in Jaywick Lane, Clacton On Sea, Essex, CO16 — £300,000 • 4 bed • 3 bath • 1098 ft²
9 bedroom detached bungalow for sale in Holbrook Close, Clacton-on-sea, Essex, CO16 — £600,000 • 9 bed • 3 bath • 2585 ft²
4 bedroom detached house for sale in Chandlers Close, Clacton-On-Sea, CO16 — £300,000 • 4 bed • 2 bath • 1521 ft²










































































































