Compact starter home with parking and garden — ideal for first-time buyers or investors..
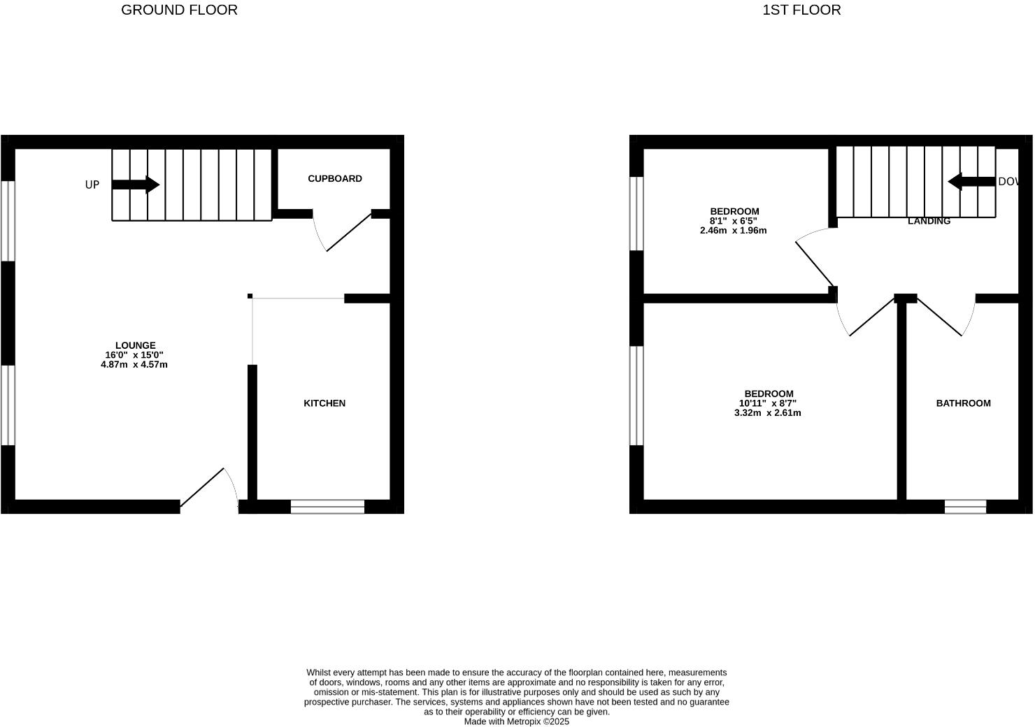
- Two bedrooms, open-plan living and kitchen downstairs
- Off-street parking for two cars to front
- Private rear garden with patio and lawn
- Freehold tenure, approx. 603 sq ft total
- One small bedroom; limited internal space overall
- Located in a deprived area; local crime rate is high
- Good access to A45/M1, bus routes, and nearby schools
- Fast broadband and excellent mobile signal
A compact, practical two-bedroom semi-detached starter home in a quiet cul-de-sac, suited to first-time buyers or buy-to-let investors. The ground floor offers an open-plan living and kitchen area with good natural light, while two bedrooms and a family bathroom sit upstairs. Off-street parking for two cars and a private rear garden add useful outdoor and storage space.
The property is freehold and presented in generally sound condition, with scope to modernise and add value over time — ideal for buyers wanting a straightforward home to personalise or investors seeking a rentable asset. Broadband speeds are fast and mobile signal is excellent, supporting working from home or tenancy demands.
Be candid: the overall footprint is small (approximately 603 sq ft) with one notably small bedroom, and the local area scores as deprived with a higher-than-average crime rate. Buyers should factor these points into resale or rental expectations and consider minor updates to maximise appeal. Transport links and nearby schools are strong positives for commuters and families.
2 bedroom semi-detached house for sale in Hamsterly Park | Southfields | NN3 — £205,000 • 2 bed • 1 bath • 498 ft²
3 bedroom semi-detached house for sale in Dickson Close, Northampton, NN4 — £260,000 • 3 bed • 1 bath • 905 ft²
2 bedroom semi-detached house for sale in Ruby Close, Irthlingborough, Wellingborough, NN9 — £240,000 • 2 bed • 2 bath • 904 ft²
2 bedroom semi-detached house for sale in Tavistock Close, Ecton Brook, Northampton NN3 — £210,000 • 2 bed • 1 bath • 661 ft²
2 bedroom terraced house for sale in Hodder Street, Kingsthorpe, Northampton, NN2 — £220,000 • 2 bed • 1 bath • 539 ft²
2 bedroom semi-detached house for sale in Ashby Wood Mews, Upton, NN5 — £250,000 • 2 bed • 1 bath • 894 ft²














































