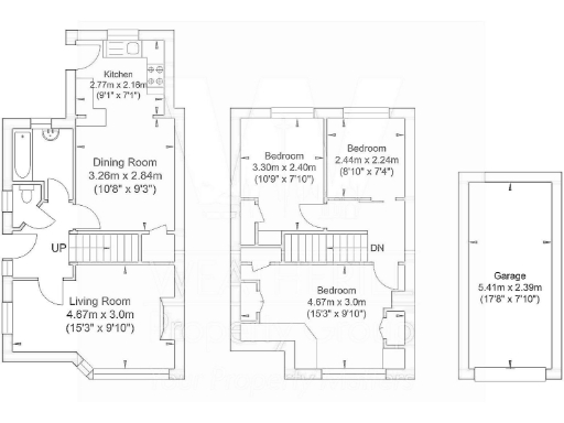
- Three full bedrooms, including dormer first-floor rooms
- Full rear extension with open-plan kitchen/diner
- Private single garage plus long driveway parking
- Step-free access to front and rear entrances
- Recently updated bathroom and neutral décor throughout
- Buyer incentive: new carpets and vinyl fitted pre-completion
- Small overall footprint (approximately 609 sq ft)
- Single bathroom; modest rear garden and small plot
Tucked at the end of a quiet close in Portslade, this three-bedroom end-of-terrace chalet bungalow offers practical, step-free living and clear move-in potential. A full rear extension creates a bright open-plan kitchen/diner that suits everyday family life and informal entertaining. The property is chain-free and comes with a private garage plus generous driveway parking.
Internally the home benefits from recent updates including a refreshed bathroom and neutral décor. Buyers are offered new carpets and vinyl flooring pre-completion with a choice of colours from an agreed range, so the property can be made ready with minimal delay. The living room’s bay window and upstairs dormer bedrooms give comfortable, well-lit rooms in a compact footprint of about 609 sq ft.
Externally the plot is modest: a low-maintenance rear garden and a larger front garden that could potentially accommodate off-street parking (subject to permissions). Practical features include step-free access front and rear, a private garage, and plentiful parking — useful in a residential suburb with very low crime and excellent local amenities.
Note the property is small in overall size and has a single bathroom, so it best suits small families, downsizers or first-time buyers seeking a straightforward, low-maintenance home with some scope for modest improvement. While many finishes are tidy, other areas may benefit from light refurbishment to fully modernise the layout and maximise value.
3 bedroom semi-detached bungalow for sale in Hillside, Portslade, BN41 — £450,000 • 3 bed • 1 bath • 854 ft²
3 bedroom house for sale in Mill Lane, Portslade, BN41 — £450,000 • 3 bed • 1 bath • 882 ft²
3 bedroom house for sale in North Lane, Portslade, BN41 — £410,000 • 3 bed • 1 bath • 1176 ft²
3 bedroom semi-detached bungalow for sale in Benfield Close, Portslade, BN41 — £475,000 • 3 bed • 1 bath • 947 ft²
3 bedroom semi-detached bungalow for sale in Valley Road, BN41 — £375,000 • 3 bed • 1 bath • 1053 ft²
2 bedroom detached bungalow for sale in North Lane, Portslade, Brighton, BN41 — £350,000 • 2 bed • 1 bath • 667 ft²










































